

- Prix
- 389 000 €
Maison neuve • Chanteloup (35)
- Nom et prix
- Terrain à bâtir () • 389 000 €
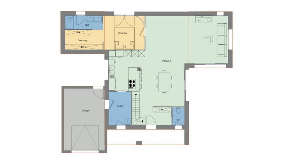
Maison de 5 pièces (140 m²) à vendre à Chanteloup IDÉALEMENT SITUÉE - MAISON 5 PIÈCES NEUVE À vendre à quelques kilomètres de Rennes, notre agence Maisons de l'Avenir Cesson-Sévigné est ravie de vous présenter cette maison de 5 pièces de 140 m² idéalement située dans Chanteloup (35150). Son intérieur se divise en quatre chambres, une cuisine et deux salles de bains. Le terrain du bien est de 382 m². C'est une maison de 2 niveaux. Elle est neuve. La maison se situe dans un quartier attractif. On trouve l'École Primaire Publique Lucie Aubrac à moins de 10 minutes à pied et une crèche. Côté transports en commun, il y a quatre gares à moins de 10 minutes en voiture. La nationale N137 est accessible à 6 km. On trouve une boulangerie dans les environs. Elle est à vendre pour la somme de 389 000 €. Contactez notre agence (CIMINNA Romain : 02-99-83-07-20) pour obtenir de plus amples renseignements sur la propriété. Maisons de l'Avenir Cesson-Sévigné est là pour vous accompagner à toutes les étapes de votre projet.










