

- Prix
- 214 500 €
Maison neuve • Guissény (29)
- Nom et prix
- Terrain à bâtir () • 214 500 €
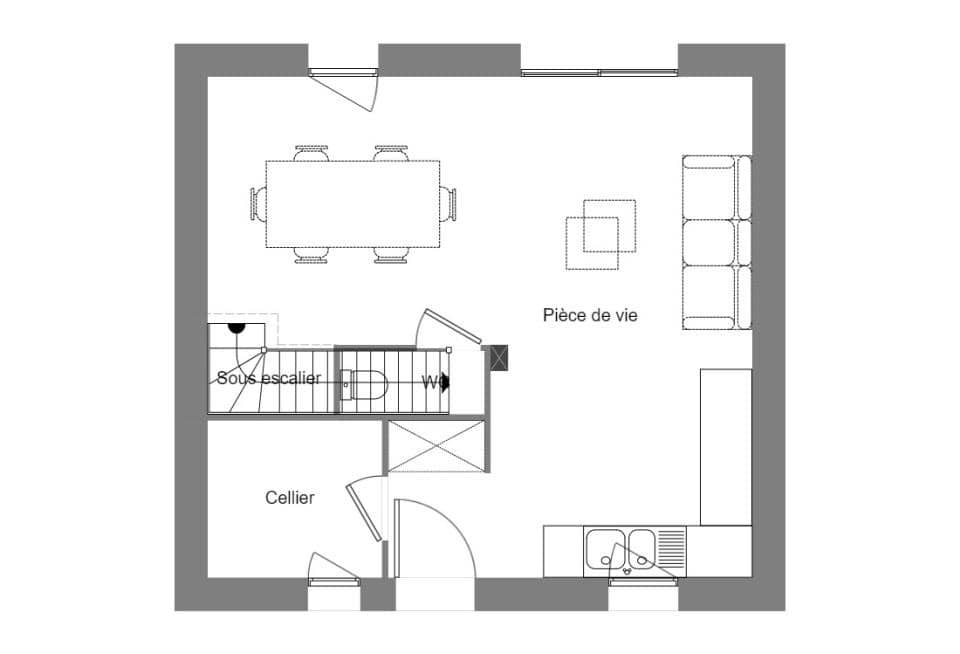
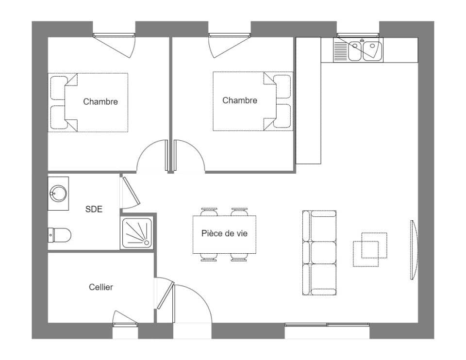
Vente : Maison de 4 pièces (70 m²) à Guissény EMPLACEMENT PRIVILÉGIÉ - MAISON NEUVE Sur le littoral et à proximité de Brest, découvrez cette maison neuve de 4 pièces de plain-pied d'une surface de 70 m², implantée sur un terrain de 337 m². Offrant un cadre de vie idéal, elle comprend trois chambres, une cuisine moderne et une salle de bains. Cette maison est située dans un quartier recherché et bénéficie d'un emplacement exceptionnel pour profiter pleinement de la région. Proposée au prix de 214 500 €, elle représente une belle opportunité pour concrétiser votre projet immobilier. Contactez Jean Ropers au 02-98-03-90-90 pour plus de renseignements et pour avancer sur votre acquisition.










