

- Prix
- 848 000 €
Maison neuve • Médan (78)
- Nom et prix
- Terrain à bâtir () • 848 000 €
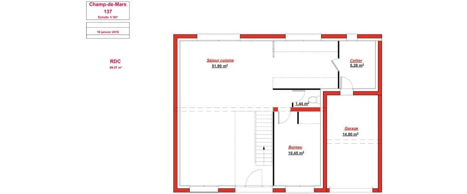
Maison de 5 pièces (137 m²) à vendre à Médan EMPLACEMENT PRIVILÉGI- VUE PANORAMIQUE À deux pas de la gare de Villennes-sur-Seine (Paris à 20 min par le Transilien J), à vendre bénéficiant d'un emplacement privilégié dans Médan (78670), ayez le coup de coeur pour cette maison de 5 pièces de 137 m² et de 1 150 m² de terrain avec vue panoramique. Elle dispose de trois chambres, d'une cuisine et de deux salles de bains. Cette maison compte 2 niveaux. Elle est neuve. La maison est située dans un quartier attractif. Il y a l'École Primaire Emile Zola à moins de 10 minutes à pied et une crèche. Côté transports, on trouve la ligne de RER A (Poissy) ainsi que 20 gares à moins de 10 minutes en voiture. On trouve une bibliothèque, une boulangerie et deux commerces à proximité du bien. Son prix de vente est de 848 000 €. Contactez Marc LE MOEL (06-52-02-43-99) pour toute question sur la propriété, sur les modalités de vente ou sur les démarches à suivre. Maisons BERVAL Bénéficie d'une triple certification NF-HQE-PROPERMEA.










