

- Prix
- 389 000 €
Maison neuve • Le Mans (72)
- Nom et prix
- Terrain à bâtir Le Mans (72000) • 389 000 €
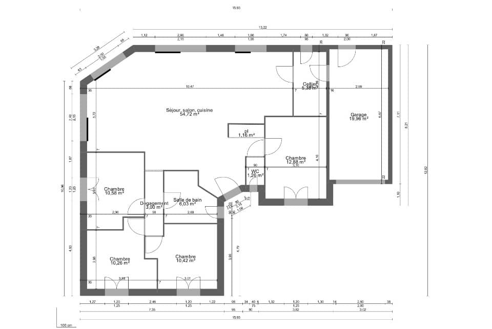
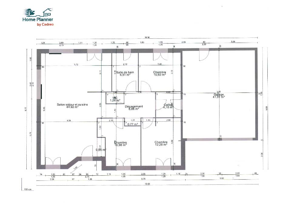
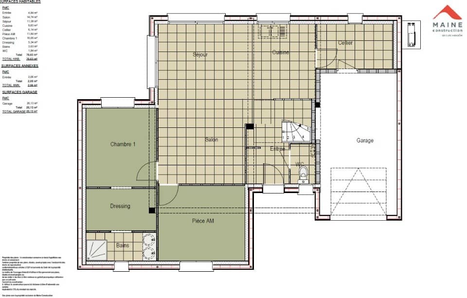
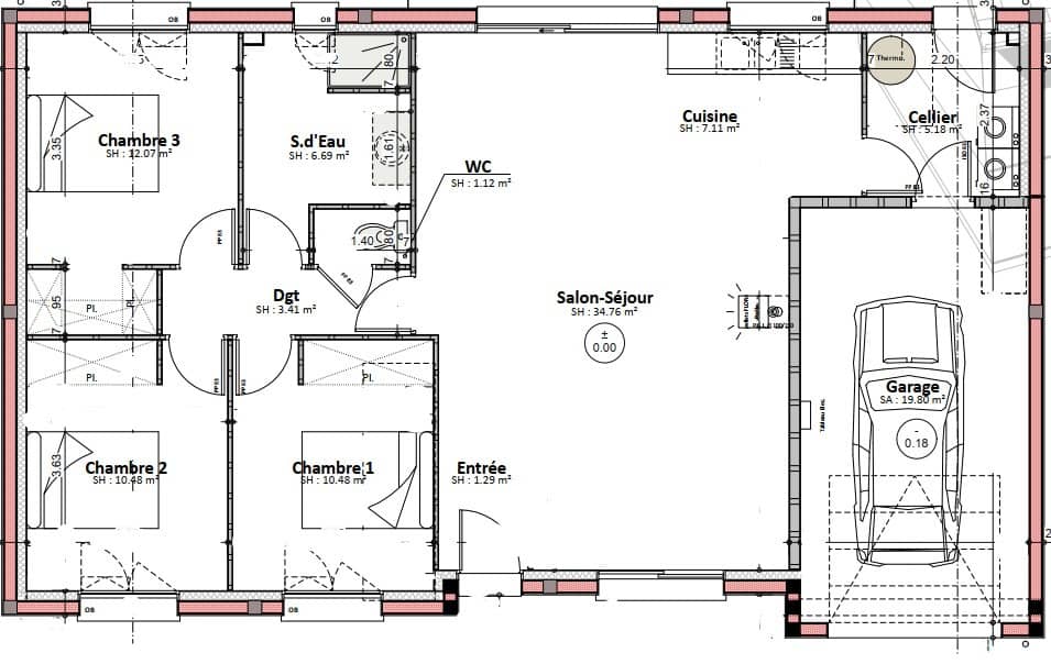
Maison de 9 pièces (158 m²) en vente au Mans EMPLACEMENT PRIVILÉGI- MAISON 9 PIÈCES NEUVE À vendre : votre agence Maine Construction Saint-Saturnin est heureuse de vous présenter cette maison de 9 pièces de 158 m² et de 732 m² de terrain bénéficiant d'un emplacement d'exception dans Le Mans (72000). C'est une maison de 2 niveaux. Elle se divise en cinq chambres, une cuisine et deux salles de bains. La maison est neuve. La maison se situe dans un quartier convoité. Il y a le lycée Institut Technologique Européen des Métiers de la Musique à moins de 10 minutes à pied, deux crèches et deux établissements du supérieur juste à côté : l'Université du Mans et l'Institut supérieur des matériaux du Mans. Niveau transports, on trouve les gares Le Mans, Neuville-sur-Sarthe et Arnage à moins de 10 minutes en voiture. L'autoroute A11 est accessible à 3 km. Il y a deux tennis, trois boulangeries, des commerces, un supermarché et un bureau de poste à proximité du bien. Elle est à vendre pour la somme de 389 000 €. Contactez notre agence (HOUDAYER François : 06-23-38-26-90) pour toute question sur le bien, sur les démarches à suivre ou sur les modalités de vente. Concrétisez vos projets immobiliers avec Maine Construction Saint-Saturnin.










