
Maison neuve • Saint-Pargoire (34)
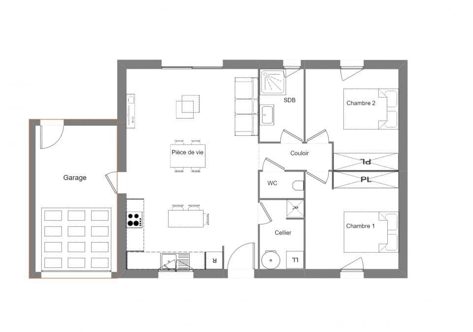
PROJET DE CONSTRUCTION - Maison de 4 pièces (86 m²) à Saint-Pargoire IDÉALEMENT SITUÉE - MAISON 4 PIÈCES À vendre : à 23 km de la côte méditerranéenne et à deux pas de Montpellier, nous sommes ravis de vous présenter cette maison de 4 pièces de plain-pied de 86 m², idéalement située dans Saint-Pargoire (34230). Conçue de plain-pied, elle propose trois chambres, une cuisine et une salle de bains + GARAGE. (Carrelage inclus dans toutes les pièces / Raccordements inclus). Le terrain de la propriété s'étend sur 300 m². La maison est située dans un quartier recherché. Il y a l'École Maternelle Jean Jaurès, l'École Élémentaire Jules Ferry et l'École Primaire Privée Sainte Jeanne d'Arc à moins de 10 minutes à pied. Il y a un accès à l'autoroute A75 à 6 km. On trouve un tennis, deux boulangeries, un commerce, une épicerie, une boucherie-charcuterie et un bureau de poste à quelques minutes. Son prix de vente est de 235 000 €. Pour plus d'information contacter (Anthony BALLESTER : 06-27-21-51-55) Maisons France Confort Béziers pour échanger sur votre projet et réaliser une étude gratuite. (Plan personnalisable). Tous nos ouvrages sont réalisés sur-mesure en fonction de vos attentes et de nos échanges avec vous ainsi que dans le respect de la règlementation RE 2020. Ce projet comporte les garanties suivantes: Contrat de construction CCMI. Dommage/Ouvrage. RC Garantie décennale. Parfaite achèvement. Etude de sol G2. Prix et délais convenu. Garantie de livraison. Garantie financière Pour votre tranquillité nous nous occupons de toutes les formalités administratives.
Proposé par Maisons FRANCE CONFORT - Béziers










