

- Prix
- 605 000 €
Maison neuve • Plailly (60)
- Nom et prix
- Terrain à bâtir Plailly (60128) • 605 000 €
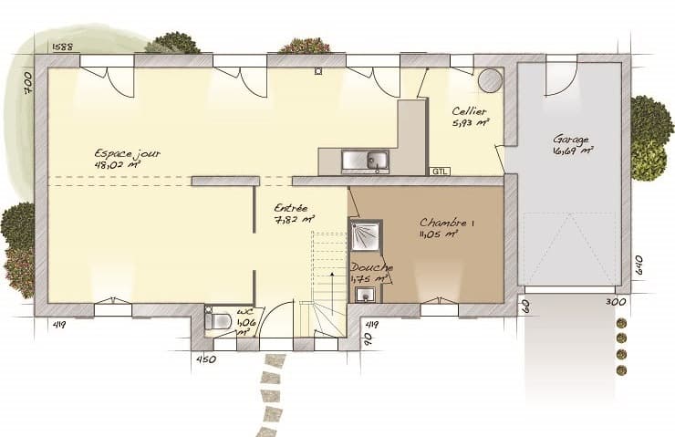
Plailly : maison de 7 pièces (125 m²) en vente MAISON 7 PIÈCES NEUVE - PROCHE DE SAINT-DENIS À vendre : à proximité du RER D (station Survilliers-Fosses, 30 min de Paris), notre agence Maisons Balency Dammartin-en-Goële est ravie de vous proposer cette maison de 7 pièces de 125 m² à Plailly (60128). Cette maison compte 2 niveaux. Son intérieur propose quatre chambres, une cuisine et trois salles de bains. La maison est neuve. Le terrain du bien s'étend sur 1 500 m². L'École Primaire des Fontaines est implantée à moins de 10 minutes à pied, tout comme une structure d'accueil pour les enfants en bas âge. Niveau transports, on trouve la ligne de RER D (Survilliers-Fosses) ainsi que quatre gares à moins de 10 minutes en voiture. L'autoroute A1 et les nationales N104 et N2 sont accessibles à moins de 10 km et Saint-Denis se situe à 25 km. Il y a un tennis, trois boulangeries, trois commerces, une épicerie et un bureau de poste à proximité. Son prix de vente est de 605 000 €. Contactez notre constructeur (DARTEVELLE Sébastien : 06-24-63-58-60) pour toute question sur le bien. Maisons Balency Dammartin-en-Goële est là pour vous accompagner à toutes les étapes de l'achat.












