

- Prix
- 204 000 €
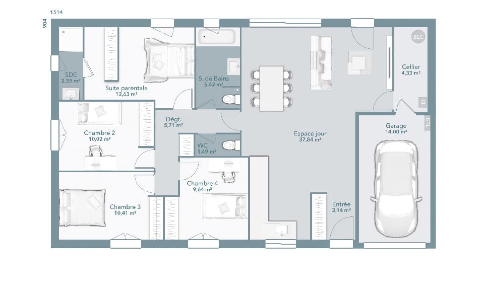
Maison neuve • Lamothe-Capdeville (82)
- Nom et prix
- Terrain à bâtir Lamothe-Capdeville (82130) • 204 000 €
L'agence Maisons France Confort d'AUCAMVILLE vous présente ce projet de construction de maison T4 aux dernières normes (RE 2020) sur la commune de LAMOTHE . Conception traditionnelle de plain-pied et entièrement personnalisable. Sur une parcelle de 1700 m², le modèle proposé est OPTIMA 90. Il se compose d'un espace séjour/cuisine de 40m² donnant accès à un cellier, de 3 chambres, une salle de bains et un WC indépendant. Un garage de 14m² est intégré à la maison. La surface habitable est de 90m². Dans un environnement calme et agréable à 10 minutes des commodités. Montauban vous sera accessible en 10 minutes. Contactez l'agence Maisons France Confort d'AUCAMVILLE au 05 34 43 84 38 Xavier FEUGUEUR. PRIX : 204 000 € HF











