

- Prix
- 209 209 €
Maison neuve • Lacourt-Saint-Pierre (82)
- Nom et prix
- Terrain à bâtir Lacourt-Saint-Pierre (82290) • 209 209 €
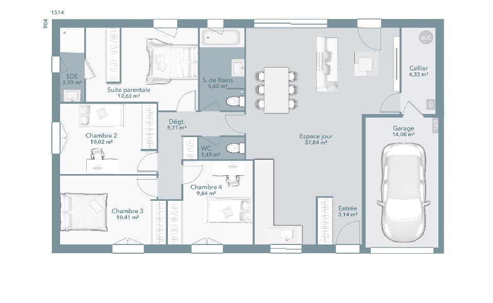
'Votre agence Maisons France Confort d'Aucamville vous propose ce beau projet maison+terrain à proximité de la commune de La Ville Dieu du Temple Vous souhaitez faire construire une maison de plain-pied ? Optez pour le modèle Actua 83 en RE2020! Dans ses 83 m² habitables, on retrouve 3 belles chambres de plus de 10 m², une salle de bains, un cellier et un vaste espace jour de près de 40 m² pour accueillir votre cuisine, votre salon et votre salle à manger ! Autre atout de ce modèle Maisons France Confort Sud, l'avancée du garage en option de près de 17 m² apporte une dynamique à la façade. prix: .209.209..€hf Pour toutes informations, contactez l'agence MAISONS FRANCE CONFORT d'Aucamville au 05.34.43.84.38'










