

- Prix
- 232 875 €
Maison neuve • Lacourt-Saint-Pierre (82)
- Nom et prix
- Terrain à bâtir Lacourt-Saint-Pierre (82290) • 232 875 €
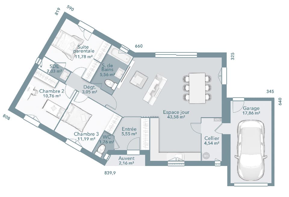
'Votre agence Maisons France Confort d'Aucamville vous propose ce beau projet maison + terrain à 7 mn de la commune de Lacourt Saint-Pierre Avec sa composition en V, l'angle n'est pas droit et la maison s'ouvre à l'extérieur, au soleil et à la lumière, c'est tous les atouts de notre plan de maison RE 2020 de plain-pied Performa 100. Conçue astucieusement pour garantir le bien-être et l'intimité de chacun, cette maison offre 2 chambres lumineuses, spacieuses avec des placards, une salle de bains et une suite parentale avec dressing et salle d'eau en option. Pour la partie jour, elle dispose d'une entrée avec un grand placard, et un espace de vie de plus de 43 m² avec cellier attenant à la cuisine et au garage en option de 18 m². Prix: 232.875.€ HF Pour toutes informations, contactez l'agence MAISONS FRANCE CONFORT d'Aucamville au 05.34.43.84.38'











