

- Prix
- 192 843 €
Maison neuve • La Ville-Dieu-du-Temple (82)
- Nom et prix
- Terrain à bâtir La Ville-Dieu-du-Temple (82290) • 192 843 €
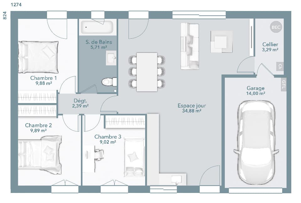
'Votre agence Maisons France Confort d'Aucamville vous propose ce beau projet maison + terrain proche de la commune de Albefeuille Lagarde Vous souhaitez faire construire une maison de plain-pied en RE2020 ? Optez pour le modèle Actua 95 ! Dans ses 95 m² habitables, on retrouve 4 belles chambres de plus de 10 m², une salle de bains, un cellier et un vaste espace jour de près de 40 m² pour accueillir votre cuisine, votre salon et votre salle à manger ! Autre atout de ce modèle Maisons France Confort Sud, l'avancée du garage en option de près de 17 m² apporte une dynamique. Prix 192.843.€ hf Pour toutes informations, contactez l'agence MAISONS FRANCE CONFORT d'Aucamville au 05.34.43.84.38.'










