

- Prix
- 405 624 €
Maison neuve • Domont (95)
- Nom et prix
- Terrain à bâtir () • 405 624 €
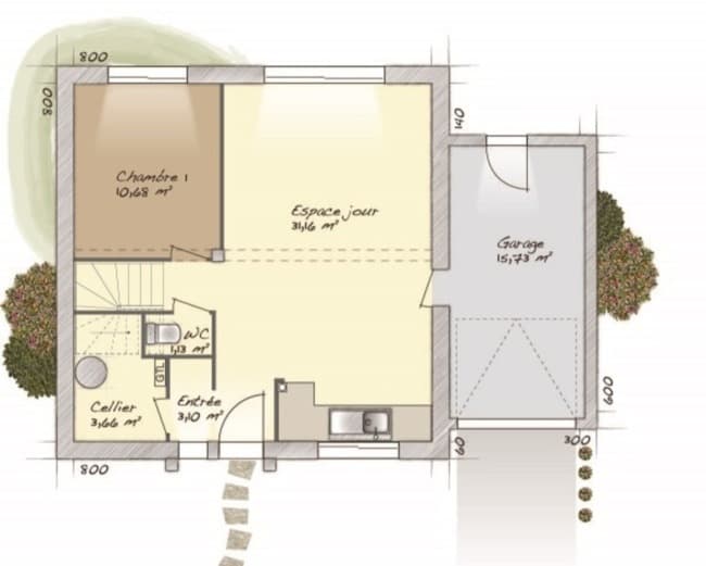
VENTE : maison de 6 pièces (98 m²) à Domont PROCHE DE PARIS - MAISON 6 PIÈCES NEUVE À vendre : à proximité du Transilien H (20 min de Paris), votre agence Maisons Balency Dammartin-en-Goële est ravie de vous présenter à Domont (95330), cette maison de 6 pièces de 98 m² et de 360 m² de terrain. C'est une maison de 2 niveaux. Son intérieur offre quatre chambres, une cuisine et une salle de bains. La maison est neuve. L'École Élémentaire Jean Moulin et l'École Maternelle Jean Moulin sont implantées à moins de 10 minutes à pied. Côté transports en commun, il y a les lignes de RER C et D ainsi que 38 gares à moins de 10 minutes en voiture. On trouve une bibliothèque, un tennis, un commerce, une épicerie et une supérette à quelques minutes à peine. Elle est proposée à l'achat pour 405 624 €. N'hésitez pas à prendre contact avec notre agence (Sébastien DARTEVELLE : 06-24-63-58-60) pour tout renseignement sur cette maison, sur les démarches à suivre ou sur les modalités de vente. Maisons Balency Dammartin-en-Goële est là pour vous accompagner à toutes les étapes de votre projet.












