logo de nos-terrains.com

649 maisons neuves à vendre à St rustice (31) (entre 150,000 € et 250,000 €)

Résultats de recherche

Maison neuve - Terrain à bâtir Cépet (31620) à Cépet (31), prix 246 451 €
246 451 €
84 m²
2934 €/m²

Maison neuveCépet (31)

'Votre agence Maisons France Confort d'Aucamville vous propose ce beau projet maison + terrain vers CEPET. D'une architecture sobre et élégante, cette maison est conçue de manière ingénieuse, fonctionnelle et adaptable. Les volumes sont optimisés pour que chaque membre de la famille puisse avoir son propre cocon. Les plus du modèle Optima 84 : Zones jour et nuit séparées. Suite parentale avec salle d'eau privative. Salle de bains en plus de la salle d'eau. WC séparés. Cellier prévu au niveau de l'arrière cuisine. Nombreux espaces de rangement prévus. prix: 246 451€hf Pour toutes informations, contactez l'agence MAISONS FRANCE CONFORT d'Aucamville au 05.34.43.84.38'

Proposé par Maisons FRANCE CONFORT - Béziers

Maison neuve - Terrain à bâtir Cépet (31620) à Cépet (31), prix 221 573 €
221 573 €
70 m²
3165 €/m²

Maison neuveCépet (31)

Votre agence Maisons France Confort d'Aucamville vous propose ce beau projet maison + terrain vers la commune de CEPET. S'installer dans une maison neuve RE 2020 n'est plus un rêve. Cette maison individuelle neuve d'une surface de 70 m² se compose de 2 chambres au rez-de-chaussée, d'une pièce à vivre de 35 m² et d'une salle de bains de plus de 4 m². Exposition sud, véritable avantage pour chauffer l'intérieur. La propriété vous fait profiter d'un garage. Consultez votre banque car, en fonction des travaux à réaliser, il est possible que les organismes bancaires vous accordent un financement partiel par crédit PTZ. Si vous êtes en quête d'un bien où habiter en famille, venez vite découvrir cette offre. Prix OFFRE EXCEPTIONNELLE A SAISIR: 221 573 € hors frais, il est possible que vous puissiez bénéficier du Prêt à taux 0%, contacter nous pour une étude de projet offerte! Pour toute information, contactez l'agence Maisons France Confort d'Aucamville au 05.34.43.84.38.

Proposé par Maisons FRANCE CONFORT - Béziers

Maison neuve - Terrain à bâtir Cépet (31620) à Cépet (31), prix 227 993 €
227 993 €
73 m²
3123 €/m²

Maison neuveCépet (31)

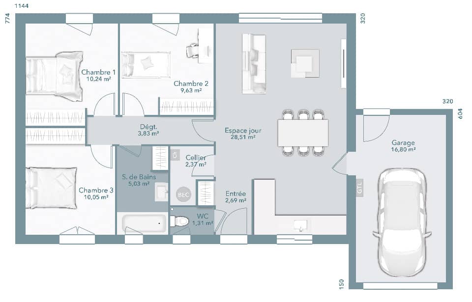
'Votre agence Maisons France Confort d'Aucamville vous propose ce projet maison + terrain vers la commune de CEPET! A la ligne épurée et moderne en RE2020, Cette maison, où chaque espace est optimisé et parfaitement fonctionnel, dispose de nombreux atouts : 3 chambres, un espace jour de près de 30 m² et une salle de bains de plus de 5 m². Élément incontournable de ce modèle, il bénéficie de nombreux placards et d'un garage en option accolé avec accès direct à la maison. Actua s'adaptera très bien à l'architecture de votre région vous pouvez en être convaincu ! prix: 227 993€ hf Pour toutes informations, contactez l'agence MAISONS FRANCE CONFORT d'Aucamville au 05.34.43.84.38.'

Proposé par Maisons FRANCE CONFORT - Béziers

Maison neuve - Terrain à bâtir Cépet (31620) à Cépet (31), prix 242 102 €
242 102 €
78 m²
3104 €/m²

Maison neuveCépet (31)

Votre agence Maisons France Confort d'Aucamville vous propose ce beau projet maison + terrain vers la commune de CEPET. Une maison spécialement étudiée et optimisée pour réussir votre projet d'investissement en toute sérénité. Tout est imaginé pour le confort de ses occupants mais aussi pour la tranquillité de ses propriétaires. Ce modèle de 78 m² est composé de 3 chambres, d'une salle de bains, d'un espace jour de 35 m², d'un grand cellier et d'un garage en option. Prix OPPORTUNITE A SAISIR: 242 102 € hors frais, il est possible que vous puissiez bénéficier du Prêt à taux 0%, contacter nous pour une étude de projet offerte! Pour toute information, contactez l'agence Maisons France Confort d'Aucamville au 05.34.43.84.38.

Proposé par Maisons FRANCE CONFORT - Béziers

Maison neuve - Terrain à bâtir Cépet (31620) à Cépet (31), prix 211 731 €
211 731 €
70 m²
3025 €/m²

Maison neuveCépet (31)

Votre agence Maisons France Confort d'Aucamville vous propose ce projet maison + terrain vers CEPET. Ce modèle de maison de 70 m² à la ligne épurée et moderne, conforme à la norme RE2020, où chaque espace est optimisé et parfaitement fonctionnel, dispose de nombreux atouts : 2 chambres, un espace jour de près de 39 m² et une salle de bains de plus de 4 m² et un garage en option. Cette maison s'adaptera parfaitement à l'architecture de votre région, vous pouvez en être convaincu ! Prix A SAISIR: 211 731 € hors frais, il est possible que vous puissiez bénéficier du Prêt à taux 0%, contacter nous pour une étude de projet offerte! Pour toute information, contactez l'agence Maisons France Confort d'Aucamville au 05.34.43.84.38.

Proposé par Maisons FRANCE CONFORT - Béziers

Maison neuve - Terrain à bâtir Campsas (82370) à Campsas (82), prix 220 820 €
220 820 €
81 m²
2726 €/m²

Maison neuveCampsas (82)

Votre agence Maisons France Confort d'AUCAMVILLE vous propose ce beau projet maison + terrain à 7 minutes de CAMPSAS . Le modèle PPGA de 80m² avec garage accolé en option est une maison à la ligne épurée et moderne en RE 2020. Cette maison est parfaitement fonctionnelle et dispose de nombreux atouts : 3 chambres, une pièce vie de près de 30m² et une salle de bains. Elle se trouve sur une parcelle de 905 m² à 5 minutes des commodités et à 30 minutes de Toulouse. Pour toutes informations, contactez l'agence MAISONS FRANCE CONFORT d'AUCAMVILLE . PRIX : 220 820 € HF

Proposé par Maisons FRANCE CONFORT - Béziers

Maison neuve - Terrain à bâtir Campsas (82370) à Campsas (82), prix 219 573 €
219 573 €
71 m²
3093 €/m²

Maison neuveCampsas (82)

Votre agence Maisons France Confort d'AUCAMVILLE vous propose ce beau projet maison + terrain à 7 minutes de CAMPSAS . De plain-pied, cette maison est construite de manière fonctionnelle pour garantir de espaces jour et nuit distincts. Le modèle Open plain-pied de 70m² avec garage intégré possède 2 chambres, une salle de bains, une pièce de vie comprenant salon et cuisine de 35m² et un cellier. Elle se trouve sur une parcelle de 905 m² à 5 minutes des commodités et à 30 minutes de Toulouse. Pour toutes informations, contactez l'agence MAISONS FRANCE CONFORT d'AUCAMVILLE . PRIX : 219 573 € HF

Proposé par Maisons FRANCE CONFORT - Béziers

Maison neuve - Terrain à bâtir Campsas (82370) à Campsas (82), prix 233 753 €
233 753 €
85 m²
2750 €/m²

Maison neuveCampsas (82)

Votre agence Maisons France Confort d'AUCAMVILLE vous propose ce beau projet maison + terrain à 7 minutes de CAMPSAS . PPGI 85 est un modèle de maison de plain-pied de 85m² à la ligne moderne et épurée en RE 2020. Celui-ci renferme de nombreux atouts : un garage intégré à la maison, 3 chambres, une salle de bains, une grande pièce de vie de 33m² et un cellier. Elle se trouve sur une parcelle de 905 m² à 5 minutes des commodités et à 30 minutes de Toulouse. Pour toutes informations, contactez l'agence MAISONS FRANCE CONFORT d'AUCAMVILLE . PRIX : 233 753 € HF

Proposé par Maisons FRANCE CONFORT - Béziers

Maison neuve - Terrain à bâtir Campsas (82370) à Campsas (82), prix 240 817 €
240 817 €
101 m²
2384 €/m²

Maison neuveCampsas (82)

Votre agence Maisons France Confort d'AUCAMVILLE vous propose ce beau projet maison + terrain à 7 minutes de CAMPSAS. Un modèle de maison spécialement étudié et optimisé pour réussir votre projet d'investissement en toute sérénité. Ici, nous avons le modèle PPGA de 100m² avec garage accolé en option. La maison possède 4 chambres, un espace jour de 31m², une grande salle de bain d'environ 7m² et un cellier. Elle se trouve sur une parcelle de 905 m² à 5 minutes des commodités et à 30 minutes de Toulouse. Pour toutes informations, contactez l'agence MAISONS FRANCE CONFORT d'AUCAMVILLE . PRIX : 240 817 € HF

Proposé par Maisons FRANCE CONFORT - Béziers

Maison neuve - Terrain à bâtir Campsas (82370) à Campsas (82), prix 245 609 €
245 609 €
105 m²
2339 €/m²

Maison neuveCampsas (82)

Votre agence Maisons France Confort d'Aucamville vous propose ce beau projet maison + terrain vers la commune de CAMPSAS. La ligne de maison Actua est conçue pour coller aux tendances actuelles ! Cette maison de plain-pied de 105 m² en RE2020 est faite astucieusement ! Jugez, vous-même : elle dispose d'une entrée avec son placard, d'une pièce de vie de plus de 40 m², d'un cellier et d'un garage . La pièce de vie comprend une jolie cuisine ouverte sur la salle à manger et le salon, un ensemble parfait pour apprécier l'espace et la lumière traversante. Pour la partie nuit, la composition de cette maison est aussi astucieuse : 3 chambres avec placards, une salle de bains mais aussi une suite parentale en option avec rangements et salle d'eau. Contactez-nous dès aujourd'hui ! Prix: 245 609€ HF Pour toutes informations, contactez l'agence MAISONS FRANCE CONFORT d'Aucamville au 05.34.43.84.38

Proposé par MAISONS FRANCE CONFORT - AUCAMVILLE

Maison neuve - Terrain à bâtir Campsas (82370) à Campsas (82), prix 233 987 €
233 987 €
90 m²
2600 €/m²

Maison neuveCampsas (82)

'Votre agence maisons France Confort d'Aucamville vous propose vers la commune de CAMPSAS ce projet terrain + maison. Tout en douceur de vie, cette maison s'inscrit naturellement dans une architecture en L, permettant ainsi une séparation judicieuse entre l'espace jour et l'espace nuit. Le séjour traversant et les différentes possibilités d'accès à la maison et au garage permettent diverses implantations dans le respect de l'orientation et de la nature environnante. Ce modèle dispose de 3 chambres et d'une salle de bains. L'espace jour donne accès au cellier et au garage. Prix: 233 987€ hf Pour toutes informations, contactez l'agence MAISONS FRANCE CONFORT d'Aucamville au 05.34.43.84.38.'

Proposé par MAISONS FRANCE CONFORT - AUCAMVILLE

Maison neuve - Terrain à bâtir Campsas (82370) à Campsas (82), prix 236 027 €
236 027 €
103 m²
2292 €/m²

Maison neuveCampsas (82)

'Votre agence Maisons France Confort d'Aucamville vous propose ce beau projet maison + terrain vers CAMPSAS. Venez découvrir ce plain-pied d'une architecture sobre et élégante, cette maison est conçue de manière ingénieuse, fonctionnelle et adaptable. Les volumes sont optimisés pour que chaque membre de la famille puisse avoir son propre cocon. Les plus de ce modèle Optima de 103 m² : Zones jour et nuit séparées. Suite parentale avec salle d'eau privative en option. Salle de bains en plus de la salle d'eau. WC séparés. Cellier prévu au niveau de l'arrière cuisine avec accès direct au garage. Nombreux espaces de rangements prévus. prix : 236 027€hf Pour toutes informations, contactez l'agence MAISONS FRANCE CONFORT d'Aucamville au 05.34.43.84.38.'

Proposé par MAISONS FRANCE CONFORT - AUCAMVILLE


Illustration Maisons neuves en vente à proximité de St rustice (31)

Maisons neuves en vente à proximité de St rustice (31)

**Saint-Rustice (Haute-Garonne, 31)** est un charmant village situé à 20 km au nord-ouest de Toulouse, en bordure de la Garonne. Proche des axes routiers (A62, RN124) et des commodités, il allie calme rural et proximité urbaine. Son **église romane du XIIe siècle**, classée aux Monuments Historiques, témoigne de son riche patrimoine. **Optez pour une maison neuve à Saint-Rustice** : bénéficiez d’un cadre de vie préservé, d’un marché immobilier encore accessible et d’un potentiel de valorisation grâce à l’attractivité toulousaine. Idéal pour investir ou s’installer !

Autres villes actives à Haute-garonne (31)


Conseils pour l'achat d'un bien immobilier

Découvrez notre sélection de maisons neuves, synonymes de confort moderne et de sérénité. Trouvez votre futur chez-vous.

L'avantage d'une maison neuve

Choisir une maison neuve, c'est bénéficier des dernières normes énergétiques (RE2020) pour des économies durables, de frais de notaire réduits, et des garanties constructeur (parfait achèvement, décennale) pour une tranquillité d'esprit.

Nos types d'annonces

Explorez nos annonces : maisons clés en main prêtes à décorer, ou programmes terrain + maison pour personnaliser certains aspects.