

- Prix
- 270 750 €
Maison neuve • Plounévez-Lochrist (29)
- Nom et prix
- Terrain à bâtir () • 270 750 €
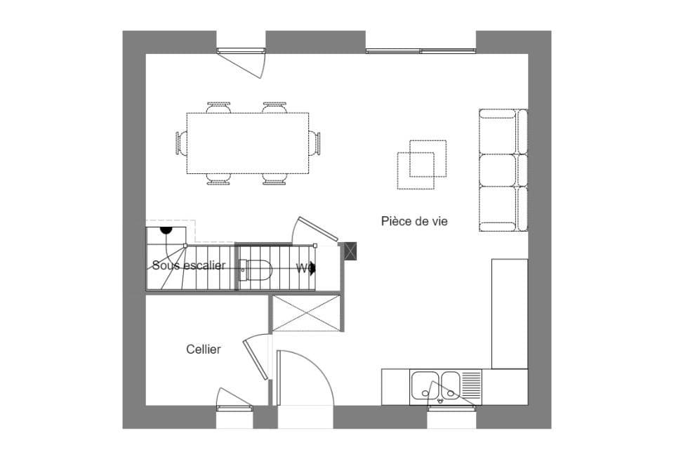
🏡 À Vendre : Terrain de 712m² au coeur de Plounévez-Lochrist - 49 820€ 🌳 Découvrez ce terrain idéalement situé en plein centre de Plounévez-Lochrist, issu d'un petit lotissement. Ce terrain de 712m² offre une proximité des commerces locaux, parfait pour une vie pratique et agréable. 🛒🏫 💡 Projet sur mesure : Nous vous proposons également la réalisation d'une maison en plein pied de 80 m², conçue spécialement pour répondre à vos attentes : 3 chambres dont une suite parentale avec dressing et salle d'eau, Un vaste espace de vie lumineux de 36 m², Un cellier avec accès direct à un garage, idéal pour protéger votre véhicule ou ajouter des espaces de stockage. Nos maisons passives Bâti Activ 🌞⚡ sont conçues pour maximiser les apports solaires naturels et offrir des performances énergétiques remarquables. 💰 Prix du terrain seul : 49 820 € 💰 Prix du projet terrain + maison : 270 750 € Si ce terrain vous intéresse, n'hésitez pas à contacter Erwan TILLY des Maisons de l'Avenir pour plus d'informations et organiser une visite. 📞 Une opportunité rare à saisir ! 🌟











