

- Prix
- 173 000 €
Maison neuve • Écoyeux (17)
- Nom et prix
- Terrain à bâtir Écoyeux (17770) • 173 000 €
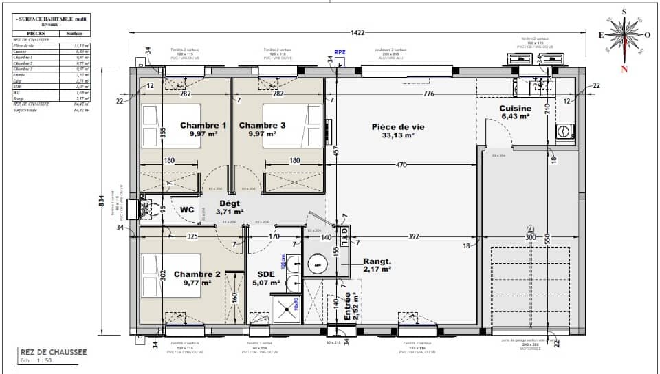
Maison de 3 pièces (70 m²) à vendre à Écoyeux IDÉALEMENT SITUÉE - MAISON 3 PIÈCES NEUVE À vendre à 50 km de la côte atlantique et à deux pas de Saintes, notre agence Maisons MCA Saintes est ravie de vous proposer cette maison de 3 pièces de plain-pied de 70 m² idéalement située dans Écoyeux (17770). Elle propose deux chambres, une cuisine et une salle de bains. Le terrain de la maison est de 884 m². Cette maison est neuve. La maison se trouve dans un quartier recherché. Il y a l'École Primaire Poitevin Ecoyeux à moins de 10 minutes à pied. Niveau transports en commun, on trouve la gare Saint-Hilaire-Brizambourg à moins de 10 minutes en voiture. L'autoroute A10 et les nationales N141, N137 et N150 sont accessibles à moins de 16 km. Elle est proposée à l'achat pour 173 000 €. Prenez contact avec notre constructeur (OLIVRÉ Patrick : O6-72-31-16-34) pour toute question sur la maison ou sur les modalités de vente. Maisons de la Côte Atlantique Saintes est là pour vous accompagner à toutes les étapes de l'achat.











