

- Prix
 - 225 000 €
 
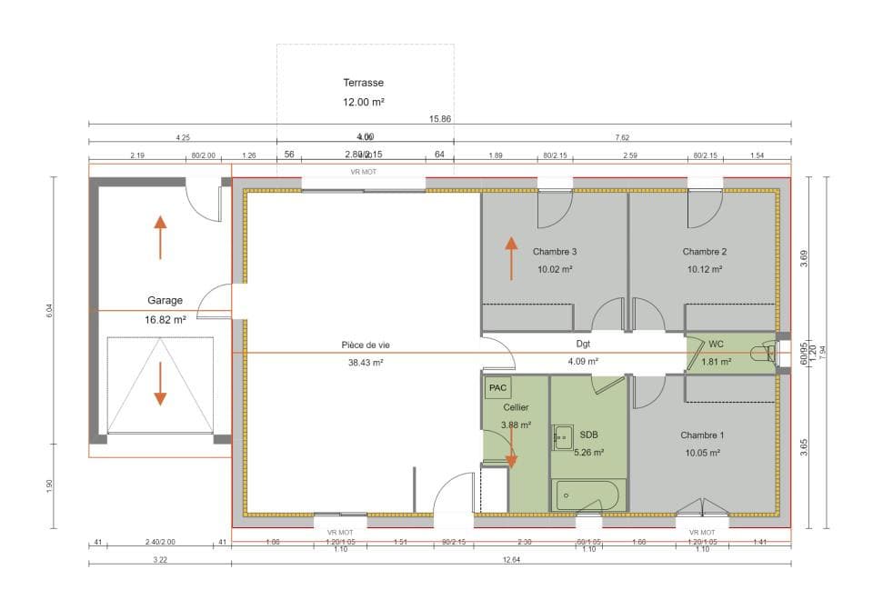
Maison neuve • L'Honor-de-Cos (82)
- Nom et prix
 - Terrain à bâtir L'Honor-de-Cos (82130) • 225 000 €
 
Maisons France Confort AUCAMVILLE - EXCLUSIVITE - Projet terrain + maison RE 2020 de 110m² à l'HONOR de COS . Conçu en L, le modèle NATURA 110 est parfaitement fonctionnel et entièrement personnalisable. Il se compose d'un séjour/cuisine de 43m² avec double exposition, un WC, un cellier et un espace nuit comprenant 4 chambres avec la possibilité de faire une suite parentale et une salle de bains. Le garage de 15m² est intégré à la maison avec un accès direct par l'intérieur. Cette habitation neuve est présentée sur un terrain de 1200 m² situé à 10 minutes des toutes les commodités et 10 minutes de Montauban. Contactez l'agence Maisons France Confort d'AUCAMVILLE au 05 34 43 84 38 Xavier FEUGUEUR. PRIX : 225 000 € HF











