

- Prix
- 426 000 €
Maison neuve • Franconville (95)
- Nom et prix
- Terrain à bâtir Franconville (95130) • 426 000 €
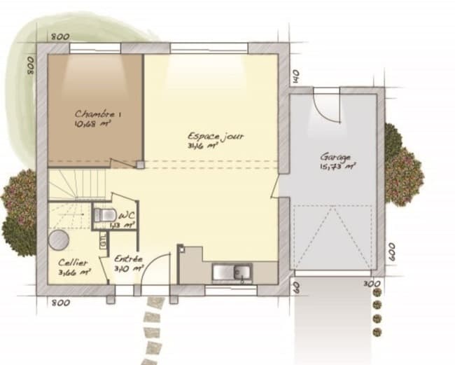
Maison T6 (98 m²) à vendre à Franconville MAISON 6 PIÈCES NEUVE En vente : à côté de la station Franconville-Le Plessis-Bouchard du RER C (25 min de Paris), notre agence Maisons Balency Saint-Maur-des-Fossés est heureuse de vous présenter cette maison de 6 pièces de 98 m² et de 379 m² de terrain à Franconville (95130). Cette maison possède 2 niveaux. Elle dispose de quatre chambres, d'une cuisine et d'une salle de bains. Cette maison est neuve. Tous les types d'écoles (de la maternelle au lycée) se trouvent à moins de 10 minutes à pied, tout comme une structure d'accueil pour la petite enfance. Niveau transports, il y a deux lignes de RER (C et A) ainsi que 49 gares à moins de 10 minutes en voiture. On trouve une bibliothèque, un bassin de natation, deux tennis, un bowling, des commerces, un supermarché, des boulangeries, trois boucheries-charcuteries et des épiceries à proximité. Elle est proposée à l'achat pour 426 000 €. Contactez Aurelien MONTANIER (tél : 06-24-66-88-34) pour toute information sur la propriété. Maisons Balency Saint-Maur-des-Fossés vous accompagne dans tous vos projets immobiliers et dans toutes vos démarches.












