

- Prix
- 155 735 €
Maison neuve • ESQUAY-SUR-SEULLES (14)
- Nom et prix
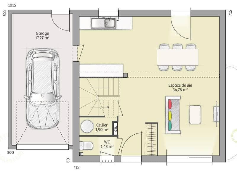
- Projet de construction d'une maison 78.09 m² avec terrain à ESQUAY-SUR-SEULLES (14) • 155 735 €
A ESQUAY-SUR-SEULLES sur un terrain de 509 m², MA MAISON 14 vous propose de réaliser cette maison neuve d'une surface de 78.09 m² habitables avec 3 chambres. MA MAISON 14 vous propose les prestations suivantes : - Plan sur-mesure et personnalisé de 2 à 5 chambres - Mode de chauffage au choix - Grands choix d'équipements et de prestations - Matériaux de qualité selon les normes en vigueur - Accompagnement dans le choix et l’acquisition du terrain - Construction conforme à la nouvelle RE 2020 Demandez une étude gratuite et personnalisée de votre projet de construction ! Libre de décoration. Prix avec assurance dommages-ouvrage comprise, terrain viabilisé, assainissement compris, frais de notaire non compris, taxes non comprises, frais divers non compris. Non mandaté pour réaliser la vente du terrain. Visuels non contractuels. Cette annonce a été créée et diffusée avec le logiciel VITAHOME. Contactez notre conseiller au 02 31 99 94 58 (Agence de Caen – Ma Maison 14).










