

- Prix
- 588 000 €
Maison neuve • Boisemont (95)
- Nom et prix
- Terrain à bâtir Boisemont (95000) • 588 000 €
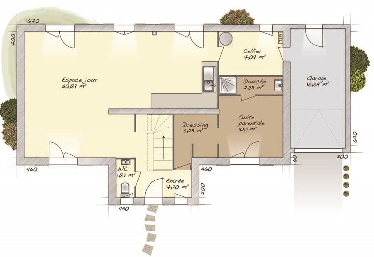
VENTE : maison T8 (145 m²) à Boisemont MAISON 8 PIÈCES NEUVE - PROCHE DE PARIS Proche du Transilien J (gare de Vaux-sur-Seine, 35 min de Paris), notre agence Maisons Balency Dammartin-en-Goële est heureuse de vous proposer cette maison de 8 pièces de 145 m² à Boisemont (95000). Elle est composée de cinq chambres, d'une cuisine et de trois salles de bains. Le terrain du bien s'étend sur 2 000 m². Cette maison comporte 2 niveaux. Elle est neuve. L'École Primaire Publique Chasles le Roux se trouve à moins de 10 minutes à pied, tout comme une crèche. Niveau transports, il y a deux lignes de RER (A et C) ainsi que 30 gares à moins de 10 minutes en voiture. On trouve un tennis à quelques minutes à peine. Elle est proposée à l'achat pour 588 000 €. Contactez notre agence (DARTEVELLE Sébastien : 06-24-63-58-60) pour obtenir de plus amples renseignements sur cette maison, sur les modalités de vente ou sur les démarches à suivre. Maisons Balency Dammartin-en-Goële est là pour vous accompagner à toutes les étapes de votre projet.











