

- Prix
- 319 274 €
Maison neuve • Ognes (60)
- Nom et prix
- Terrain à bâtir Ognes (60440) • 319 274 €
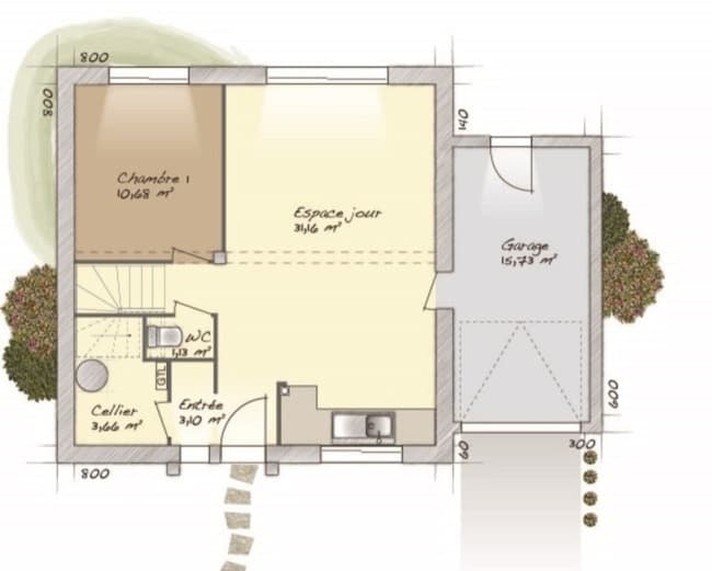
Ognes : maison de 6 pièces (98 m²) à vendre PROCHE D'AULNAY-SOUS-BOIS - MAISON 6 PIÈCES NEUVE À vendre : à côté de la gare de Nanteuil-le-Haudouin (Paris à 40 min avec le Transilien K), venez découvrir cette maison de 6 pièces de 98 m² à Ognes (60440). Elle offre quatre chambres, une cuisine et une salle de bains. Le terrain de la propriété s'étend sur 400 m². Cette maison compte 2 niveaux. Elle est neuve. Il y a une école maternelle dans le quartier. Niveau transports, on trouve deux gares (Nanteuil-le-Haudouin et Le Plessis-Belleville) à moins de 10 minutes en voiture. Il y a un accès à la nationale N2 à 5 km et Aulnay-sous-Bois se situe à 30 km. Son prix de vente est de 319 274 €. Contactez Sébastien DARTEVELLE (06-24-63-58-60) pour tout renseignement sur cette maison, sur les modalités de vente ou sur les démarches à suivre.











