logo de nos-terrains.com

833 maisons neuves à vendre à Vieille eglise en yvelines (78) (à partir de 250,000 €)

Résultats de recherche

Maison neuve - Projet de construction d'une maison 135 m² avec terrain à LES BREVIAIRES (78) à chemin vert (78), prix 250 656 €
250 656 €
135 m²
1857 €/m²

Maison neuvechemin vert (78)

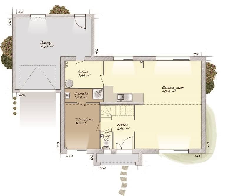
Le modèle Flore de 135 m² est une maison à étage qui fait partie de la gamme Le Pavillon Français, il se distingue par sa construction en brique pour une performance thermique optimale. Son architecture exclusivement traditionnelle donne un style authentique et naturel à ce pavillon grâce à son bardage bois complètement personnalisable. Ses lucarnes vous apporteront de l’espace supplémentaire à l’étage pour des pièces plus fonctionnelles grâce à l’absence des rampants de toiture. Ce modèle a été conçu pour un aménagement pratique et un confort optimal : au rez-de-chaussée, la porte d’entrée ouvre sur un spacieux salon-séjour avec cuisine ouverte et cellier, un WC seul, ainsi qu’une suite parentale avec salle d’eau. À l’étage, un dégagement avec vide sur hall pour profiter d’une vue direct sur la pièce de vie commune, trois autres chambres dont une suite parentale avec dressing et salle d’eau, une salle de bain ainsi qu’un WC séparé. Le Pavillon Français construit des maisons sur-mesure alliant design, caractère et qualité depuis plus de 30 ans. Chaque projet est unique : vous choisissez la configuration, les matériaux, les finitions… nous concrétisons votre vision. Nos constructions sont encadrées par le CCMI, un contrat garantissant un prix définitif et des délais de livraison précis. Grâce à notre certification NF Habitat, vous bénéficiez d’un haut niveau de confort, de performance et de durabilité. Avec un accompagnement personnalisé à chaque étape, nous faisons de votre maison un lieu unique qui vous ressemble. Faites confiance à un constructeur expérimenté, à l’écoute et engagé à vos côtés pour bâtir la maison de vos rêves. Construction aux normes RE2020. Prix avec assurance dommages-ouvrage comprise, hors VRD, terrain viabilisé, frais de notaire non compris, frais divers non compris. Terrain sélectionné et vu pour vous sous réserve de disponibilité et au prix indiqué par notre partenaire foncier. Conditions et visuels non contractuels. Cette annonce a été créée et diffusée avec le logiciel VITAHOME. Contactez Carlos DE SA au 06 70 88 52 85 (Le Pavillon Français - Agence de Rambouillet).

Proposé par LE PAVILLON FRANÇAIS

Maison neuve - Projet de construction d'une maison 135 m² avec terrain à LES BREVIAIRES (78) à chemin vert (78), prix 250 656 €
250 656 €
135 m²
1857 €/m²

Maison neuvechemin vert (78)

Le modèle Flore de 135 m² est une maison à étage qui fait partie de la gamme Le Pavillon Français, il se distingue par sa construction en brique pour une performance thermique optimale. Son architecture exclusivement traditionnelle donne un style authentique et naturel à ce pavillon grâce à son bardage bois complètement personnalisable. Ses lucarnes vous apporteront de l’espace supplémentaire à l’étage pour des pièces plus fonctionnelles grâce à l’absence des rampants de toiture. Ce modèle a été conçu pour un aménagement pratique et un confort optimal : au rez-de-chaussée, la porte d’entrée ouvre sur un spacieux salon-séjour avec cuisine ouverte et cellier, un WC seul, ainsi qu’une suite parentale avec salle d’eau. À l’étage, un dégagement avec vide sur hall pour profiter d’une vue direct sur la pièce de vie commune, trois autres chambres dont une suite parentale avec dressing et salle d’eau, une salle de bain ainsi qu’un WC séparé. Le Pavillon Français construit des maisons sur-mesure alliant design, caractère et qualité depuis plus de 30 ans. Chaque projet est unique : vous choisissez la configuration, les matériaux, les finitions… nous concrétisons votre vision. Nos constructions sont encadrées par le CCMI, un contrat garantissant un prix définitif et des délais de livraison précis. Grâce à notre certification NF Habitat, vous bénéficiez d’un haut niveau de confort, de performance et de durabilité. Avec un accompagnement personnalisé à chaque étape, nous faisons de votre maison un lieu unique qui vous ressemble. Faites confiance à un constructeur expérimenté, à l’écoute et engagé à vos côtés pour bâtir la maison de vos rêves. Construction aux normes RE2020. Prix avec assurance dommages-ouvrage comprise, hors VRD, terrain viabilisé, frais de notaire non compris, frais divers non compris. Terrain sélectionné et vu pour vous sous réserve de disponibilité et au prix indiqué par notre partenaire foncier. Conditions et visuels non contractuels. Cette annonce a été créée et diffusée avec le logiciel VITAHOME. Contactez Carlos DE SA au 06 70 88 52 85 (Le Pavillon Français - Agence de Rambouillet).

Proposé par LE PAVILLON FRANÇAIS

Maison neuve - Terrain à bâtir Les Essarts-le-Roi (78690) à Les Essarts-le-Roi (78), prix 373 205 €
373 205 €
85 m²
4391 €/m²

Maison neuveLes Essarts-le-Roi (78)

L'agence Maisons France Confort de Coignières propose ce magnifique projet, très attractif pour son lieu, ses prestations et son prix avec par exemple ce modèle R+combles aménagés (photo non contractuelle). Au rez-de-chaussée, une cuisine ouverte sur le séjour qui offre un espace de vie spacieux et harmonieux de plus de 35 m². Un cellier, un WC et une suite parentale avec dressing et salle d'eau privative complètent ce rez-de-chaussée. La distribution de l'étage optimise l'espace autour d'un palier, 2 chambres, 1 salle de bains et 1 WC indépendant. Norme RE2020, chauffage PAC, domotique sur les volets roulants... Modèle personnalisable en fonction de votre mode de vie, vos envies et budget. Les plus Maisons France Confort : une expérience solide de presque 100 ans, la maitrise de projets sur mesure, la sécurité du premier constructeur national. Le prix de cette annonce inclus le terrain, le modèle de maison proposé en exemple ainsi que tous les frais de viabilisation, raccordements, évacuation de terres excédentaires, accès chantier etc...pour rappel les frais de notaire sur le terrain et les taxes, les clôtures, l'ameublement et la décoration ne sont pas inclus. Pour d'avantage de précisions et pour un devis de construction personnalisé avant visite du terrain contactez votre agence Maisons France Confort de Coignières au 01.34.61.12.22 ou 06.27.06.74.64

Proposé par Maisons FRANCE CONFORT - Béziers


Illustration Maisons neuves en vente à proximité de Vieille eglise en yvelines (78)

Maisons neuves en vente à proximité de Vieille eglise en yvelines (78)

Vieille-Église, située dans les Yvelines (78), est un charmant village français au cœur de la région Île-de-France. Proche de Versailles et de Paris, elle offre un cadre de vie paisible et verdoyant. Notamment connue pour son église historique, ce village est idéal pour ceux qui recherchent tranquillité et proximité des grandes villes. Investir dans une maison neuve à Vieille-Église, c'est choisir un environnement serein tout en bénéficiant des commodités urbaines à proximité.

Autres villes actives à Yvelines (78)


Conseils pour l'achat d'un bien immobilier

Découvrez notre sélection de maisons neuves, synonymes de confort moderne et de sérénité. Trouvez votre futur chez-vous.

L'avantage d'une maison neuve

Choisir une maison neuve, c'est bénéficier des dernières normes énergétiques (RE2020) pour des économies durables, de frais de notaire réduits, et des garanties constructeur (parfait achèvement, décennale) pour une tranquillité d'esprit.

Nos types d'annonces

Explorez nos annonces : maisons clés en main prêtes à décorer, ou programmes terrain + maison pour personnaliser certains aspects.