

- Prix
- 415 200 €
Maison neuve • Bezons (95)
- Nom et prix
- Terrain à bâtir Bezons (95870) • 415 200 €
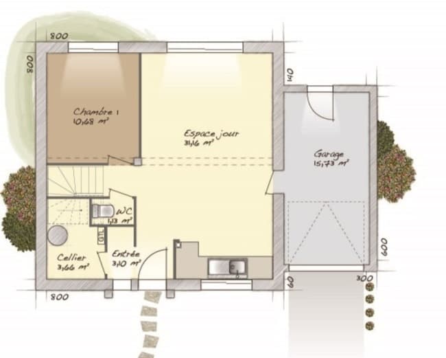
VENTE : maison de 6 pièces (102 m²) à Bezons PROCHE GARE - MAISON 6 PIÈCES NEUVE À proximité du RER A (station Houilles-Carrières-sur-Seine, 10 min de Paris), à vendre proche de la gare de Bezons (95870), nous vous présentons cette maison de 6 pièces de 102 m² avec vue sur jardin. Son intérieur dispose de quatre chambres, d'une cuisine et d'une salle de bains. Le terrain du bien s'étend sur 230 m². Il s'agit d'une maison de 2 niveaux. Elle est neuve. On trouve des écoles du primaire et du secondaire à moins de 10 minutes à pied, tout comme une structure d'accueil pour les tout-petits. Côté transports en commun, il y a trois lignes de RER (A, C et D) ainsi que 54 gares à moins de 10 minutes en voiture. On trouve une bibliothèque, deux bassins de natation, deux tennis, des supermarchés, des commerces, des boulangeries, deux boucheries-charcuteries et des épiceries à quelques minutes du logement. Elle est à vendre pour la somme de 415 200 €. Contactez notre agence (Christophe TALAMONI : 06-49-55-08-27) pour toute question sur la maison. Donnez vie à vos projets immobiliers avec Maisons Balency Pierrelaye.