
Maison neuve • Ris-Orangis (91)
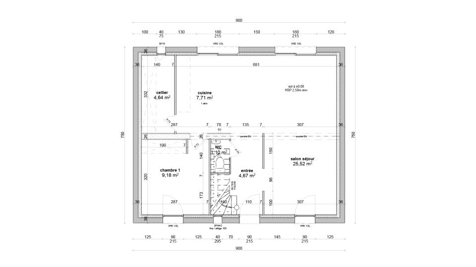
VENTE d'une maison F6 (100 m²) à Ris-Orangis CENTRE-VILLE - MAISON 6 PIÈCES NEUVE En vente : proche de la station Grigny Centre du RER D (30 min de Paris), découvrez, dans le centre-ville de Ris-Orangis (91130), cette maison de 6 pièces de 100 m² et de 680 m² de terrain avec vue sur rue. Son intérieur comporte quatre chambres, une cuisine et une salle de bains. C'est une maison de 2 niveaux. Elle est neuve. On trouve plusieurs écoles (maternelle, élémentaire, primaire et collège) à moins de 10 minutes à pied. Niveau transports, il y a deux lignes de RER (D et C) ainsi que 31 gares à moins de 10 minutes en voiture. On trouve un bassin de natation, des boulangeries, des commerces, quatre supermarchés, trois supérettes et des boucheries-charcuteries dans les environs. Enfin, le marché Place du marché anime les environs. Son prix de vente est de 370 000 €. N'hésitez pas à prendre contact avec notre agence (RELAND Thomas : 06 12 59 19 54) pour tout renseignement sur la maison.
Proposé par Maisons FRANCE CONFORT - Béziers










