

- Prix
- 333 000 €
Maison neuve • Ognes (60)
- Nom et prix
- Terrain à bâtir Ognes (60440) • 333 000 €
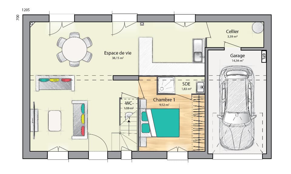
Maison à combles aménagés et réhaussée , située à Ognes , sur un terrain de 406m² viabilisé . Proximité immédiate de l'école , environnement paisible et clos , à 8 minutes du Plessis Belleville , et 20 minutes de Roissy. Cette maison dispose de 4 chambres avec rangements intégrés , séjour carrelé ,2 salles d'eau équipées , cellier et garage , normes RE 2020 , packs alarme et domotique . Tous nos plans sont 100% personnalisables et modifiables selon vos gouts et habitudes de vie . Profitez également de notre expérience de plus de 13 ans sur le secteur , et bénéficiez d'un accompagnement intégral pour votre projet de vie : Financement , étude technique du terrain , gestion administrative . Les frais annexes ( raccordements , viabilisation , puisards, enlèvements des terres excédentaires , chemin d'accès )inclus dans le prix de cette annonce . Contactez moi pour une étude gratuite . Rendez vous en agence ou à votre domicile . VERON ANTHONY /07/77/85/58/88/