

- Prix
- 299 000 €
Maison neuve • Brignoles (83)
- Nom et prix
- Terrain à bâtir Brignoles (83170) • 299 000 €
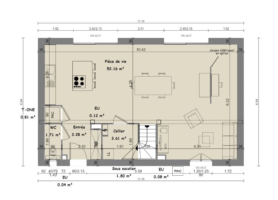
Proposition d'un projet Clé en main terrain + maison + annexe : Cette villa de 82 M² habitables offre 3 chambres, une salle de bain de 8m² et un séjour de 40m². Le prix comprend le terrassement, les fondations, le chauffage, la climatisation et la vmc. Ainsi qu'une annexe de 13m² pouvant servir de garage deux-roues, cellier ou atelier avec porte basculante. Projet avec PC sur un terrain de 380m² entièrement viabilisé ! Nous garantissons contractuellement nos prix et délais dans le cadre d'un CCMI. Pour toute information sur ce bien vous pouvez contacter Bérengère Eudier au O6 46 31 4O 98. Maisons de Manon : Plus qu'une maison, un art de vivre !












