

- Prix
- 458 000 €
Maison neuve • Le Mans (72)
- Nom et prix
- Terrain à bâtir Le Mans (72000) • 458 000 €
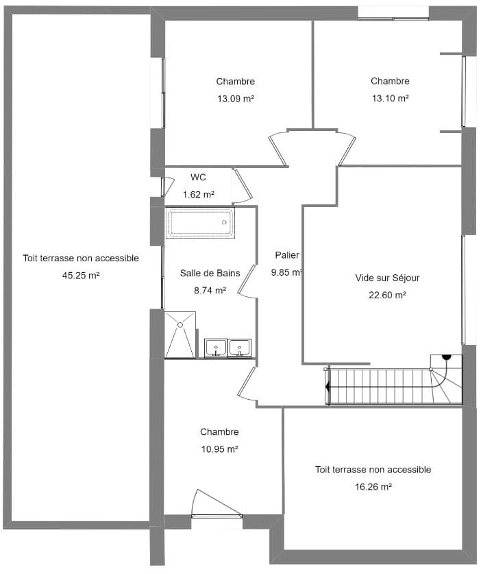
Le Mans : maison de 6 pièces (160 m²) à vendre EMPLACEMENT PRIVILÉGI- MAISON 6 PIÈCES NEUVE Maine Construction Saint-Saturnin vous présente cette maison de 6 pièces de 160 m² et de 732 m² de terrain bénéficiant d'un emplacement privilégié dans Le Mans (72000). Il s'agit d'une maison de 2 niveaux. Son intérieur propose quatre chambres, une cuisine et deux salles de bains. La maison est neuve. Cette maison est située dans un secteur attractif. On trouve le lycée Institut Technologique Européen des Métiers de la Musique à moins de 10 minutes à pied, deux structures d'accueil pour les tout-petits et l'Université du Mans et l'Institut supérieur des matériaux du Mans pour le supérieur. Niveau transports en commun, il y a les gares Le Mans, Neuville-sur-Sarthe et Arnage à moins de 10 minutes en voiture. On trouve un accès à l'autoroute A11 à 3 km. On trouve deux tennis, trois boulangeries, des commerces, un supermarché et un bureau de poste à quelques minutes à peine. Elle est à vendre pour la somme de 458 000 €. Contactez François HOUDAYER (06-23-38-26-90) pour plus d'informations sur la maison, sur les démarches à suivre ou sur les modalités de vente. Maine Construction Saint-Saturnin vous accompagne dans tous vos projets immobiliers et dans toutes vos démarches.