

- Prix
- 366 000 €
Maison neuve • Boissy-le-Châtel (77)
- Nom et prix
- Terrain à bâtir Boissy-le-Châtel (77169) • 366 000 €
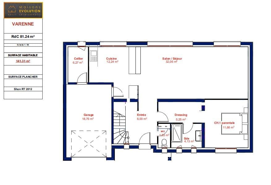
VENTE : maison F6 (141 m²) à Boissy-le-Châtel PROCHE DE MEAUX - MAISON 6 PIÈCES NEUVE En vente : à deux pas du Transilien P (gare de Coulommiers, 1 h de Paris), à Boissy-le-Châtel (77169), nous sommes ravis de vous proposer cette maison de 6 pièces de 141 m² et de 485 m² de terrain. Elle dispose de cinq chambres, d'une cuisine et de deux salles de bains. Cette maison possède 2 niveaux. Elle est neuve. L'École Maternelle Etienne Dumas et l'École Élémentaire la Mare Garenne sont implantées dans la commune. Côté transports, il y a deux gares (Coulommiers et Mouroux) à moins de 10 minutes en voiture. On trouve un tennis et un supermarché dans les environs. Elle est proposée à l'achat pour 366 000 €. N'hésitez pas à prendre contact avec Franck DORSAINT (07-66-67-97-06) pour tout renseignement sur la maison. Maisons Evolution Savigny-sur-Orge vous accompagne dans tous vos projets immobiliers et à toutes les étapes de l'achat.