

- Prix
- 207 000 €
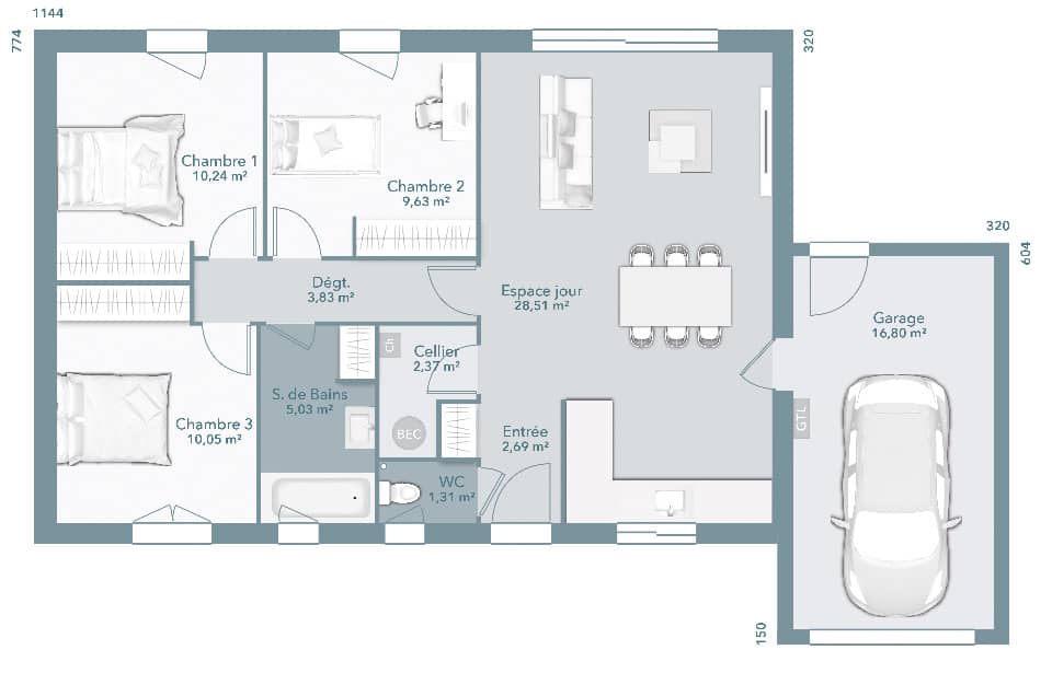
Maison neuve • Buzet-sur-Tarn
- Nom et prix
- Terrain à bâtir Buzet-sur-Tarn (31660) • 207 000 €
Votre agence Maisons France Confort d'AUCAMVILLE vous propose ce beau projet maison + terrain à 10 minutes de BUZET sur Tarn dans la Haute-Garonne. Le modèle PPGA de 80m² avec garage accolé en option est une maison à la ligne épurée et moderne en RE 2020. Cette maison est parfaitement fonctionnelle et dispose de nombreux atouts : 3 chambres, une pièce vie de près de 30m² et une salle de bains. Elle se trouve sur une parcelle de 757 m² à 5 minutes des commodités et à 30 minutes de Toulouse. Pour toutes informations, contactez l'agence MAISONS FRANCE CONFORT d'AUCAMVILLE au 05 34 43 84 38 Xavier FEUGUEUR. PRIX : 207 000 € HF





