

- Prix
- 226 748 €
Maison neuve • Grisolles
- Nom et prix
- Terrain à bâtir Grisolles (82170) • 226 748 €
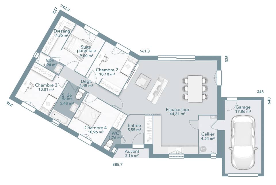
'Votre agence Maisons France Confort d'Aucamville vous propose ce beau projet maison + terrain à proximité de GRISOLLES. Vous cherchez à faire construire une maison de plain-pied ouverte sur la lumière extérieure et le jardin, optez pour notre plan Performa 112 ! Ce modèle se répartit en deux ailes, la première pour les pièces de vie avec une entrée et un espace ouvert pour le salon, la cuisine et la salle à manger, la deuxième pour les pièces de nuit avec 3 chambres, une salle de bain et une suite parentale en option avec dressing et salle d'eau. Ce modèle de maison est aussi apprécié pour sa fonctionnalité, puisqu'elle dispose d'un garage en option ouvrant sur un cellier donnant dans la cuisine et que chaque pièce possède ses rangements. prix : 226 748€hf Pour toutes informations, contactez l'agence MAISONS FRANCE CONFORT d'Aucamville au 05.34.43.84.38'





