

- Prix
- 268 000 €
Maison neuve • Montastruc
- Nom et prix
- Terrain à bâtir Montastruc (82130) • 268 000 €
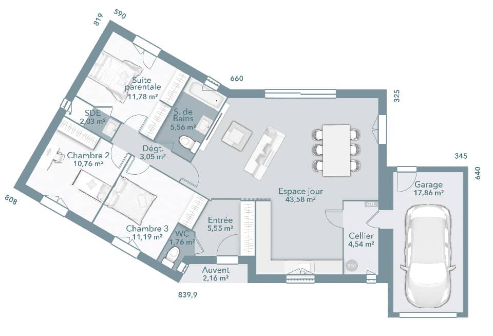
Votre agence Maisons France Confort d'AUCAMVILLE vous propose ce beau projet maison + terrain à MONTASTRUC Le modèle présenté est Ultima 95 GA. Cette maison propose 95m² de surface avec un bel espace jour de 35m², 3 chambres dont une suite parentale, une salle de bains. Un cellier et un garage accolé de 18m² viennent compléter ce modèle. Le petit plus, sa toiture-terrasse est un atout esthétique et moderne ! La maison se trouve sur une parcelle de 1500 m² à 10 minutes des commodités et à 10 minutes de MONTAUBAN. Pour toutes informations, contactez l'agence MAISONS FRANCE CONFORT d'AUCAMVILLE au 05 34 43 84 38 Xavier FEUGUEUR. PRIX : 268 000 € HF





