

- Prix
- 219 333 €
Maison neuve • Lacourt-Saint-Pierre
- Nom et prix
- Terrain à bâtir Lacourt-Saint-Pierre (82290) • 219 333 €
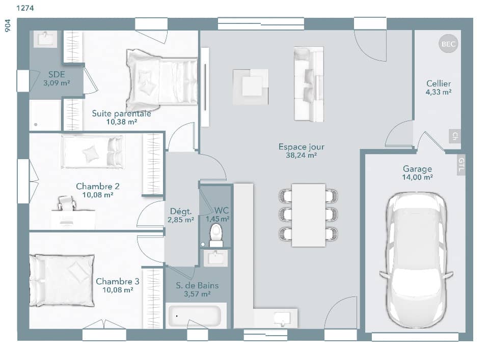
'Votre agence Maisons France Confort d'Aucamville vous propose ce beau projet maison + terrain à 7.. min au Nord de Lacourt Saint-Pierre D'une architecture sobre et élégante, cette maison est conçue de manière ingénieuse, fonctionnelle et adaptable. Les volumes sont optimisés pour que chaque membre de la famille puisse avoir son propre cocon. Les plus du modèle Optima 84 : Zones jour et nuit séparées. Suite parentale avec salle d'eau privative. Salle de bains en plus de la salle d'eau. WC séparés. Cellier prévu au niveau de l'arrière cuisine. Nombreux espaces de rangement prévus. prix: 219.333 .€ hf Pour toutes informations, contactez l'agence MAISONS FRANCE CONFORT d'Aucamville au 05.34.43.84.38'





