

- Prix
- 275 000 €
Maison neuve • Lamothe-Capdeville
- Nom et prix
- Terrain à bâtir Lamothe-Capdeville (82130) • 275 000 €
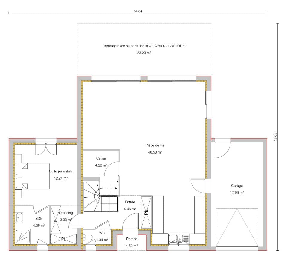
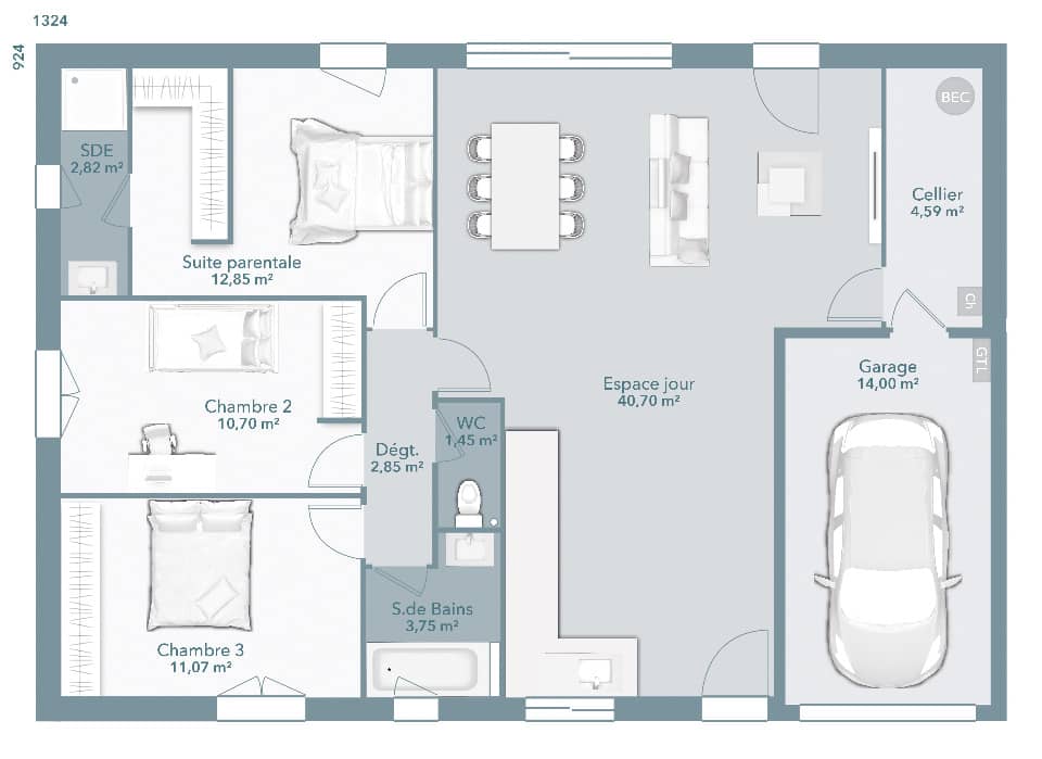
L'agence Maisons France Confort d'AUCAMVILLE vous propose ce projet terrain + maison sur la commune de LAMOTHE . Sur une parcelle de 1700 m² le modèle proposé est MEDITERRANEE 120. Conception traditionnelle à étage, fonctionnelle et entièrement personnalisable. Vous trouverez au rez-de-chaussée une entrée, une pièce de vie séjour/cuisine de 39m² avec une double ouverture, un cellier, un WC et une suite parentale. L'étage se compose de 3 chambres, une salle de bains et un WC. Le garage de 21m² en option est accolé à la maison. Dans un environnement calme et agréable à seulement 10 minutes de toutes commodités et 10 minutes de MONTAUBAN. Contactez votre agence Maisons France Confort d'AUCAMVILLE au 05 34 43 84 38 Xavier FEUGUEUR. PRIX : 275 000 € HF





