

- Prix
- 235 000 €
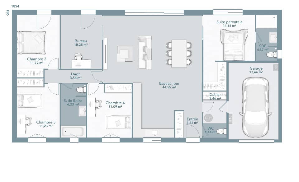
Maison neuve • Villemur-sur-Tarn
- Nom et prix
- Terrain à bâtir Villemur-sur-Tarn (31340) • 235 000 €
Maisons France Confort AUCAMVILLE - EXCLUSIVITE - Projet terrain + maison RE 2020 de 90m² à VILLEMUR sur TARN . Conçu en L, le modèle NATURA 90 est parfaitement fonctionnel et entièrement personnalisable. Il se compose d'un séjour/cuisine de 43m² avec double exposition, un WC, un cellier et un espace nuit comprenant 3 chambres et une salle de bains. Le garage de 15m² est intégré à la maison avec un accès direct par l'intérieur. Cette habitation neuve est présentée sur un terrain de 750 m² situé à 5 minutes des toutes les commodités et 35 minutes de Toulouse. Contactez l'agence Maisons France Confort d'AUCAMVILLE au 05 34 43 84 38 Xavier FEUGUEUR. PRIX : 235 000 € HF





