

- Prix
- 535 000 €
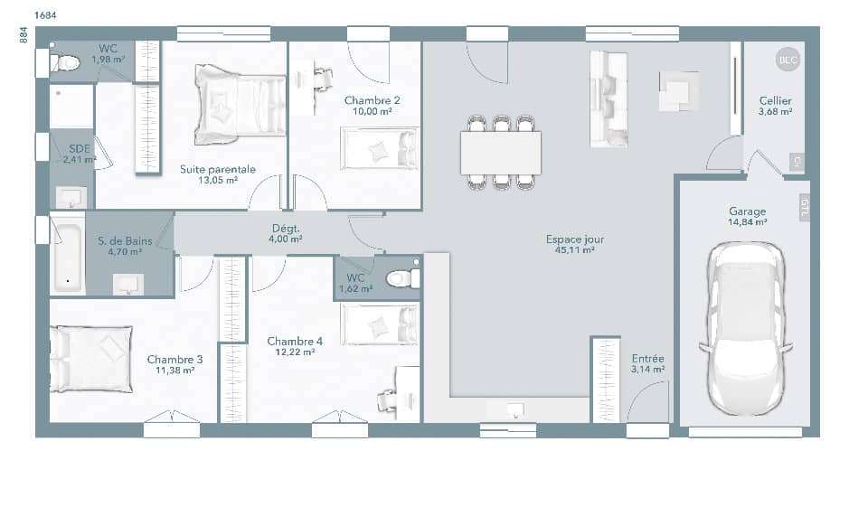
Maison neuve • Blagnac
- Nom et prix
- Terrain à bâtir Blagnac (31700) • 535 000 €
Votre agence Maisons France Confort d'AUCAMVILLE vous propose ce beau projet maison + terrain à BLAGNAC Le modèle présenté est Ultima 110 GA. Cette maison propose 110m² de surface avec un bel espace jour de 39m², 4 chambres dont une suite parentale, une salle de bains. Un cellier et un garage en option accolé de 18m² viennent compléter ce modèle. Le petit plus, sa toiture-terrasse est un atout esthétique et moderne ! La maison se trouve sur une parcelle de 400 m² à 2 minutes des commodités et à 5 minutes de Toulouse. Pour toutes informations, contactez l'agence MAISONS FRANCE CONFORT d'AUCAMVILLE au 05 34 43 84 38 Xavier FEUGUEUR. PRIX : 535 000 € HF





