

- Prix
- 188 000 €
Maison neuve • Montastruc
- Nom et prix
- Terrain à bâtir Montastruc (82130) • 188 000 €
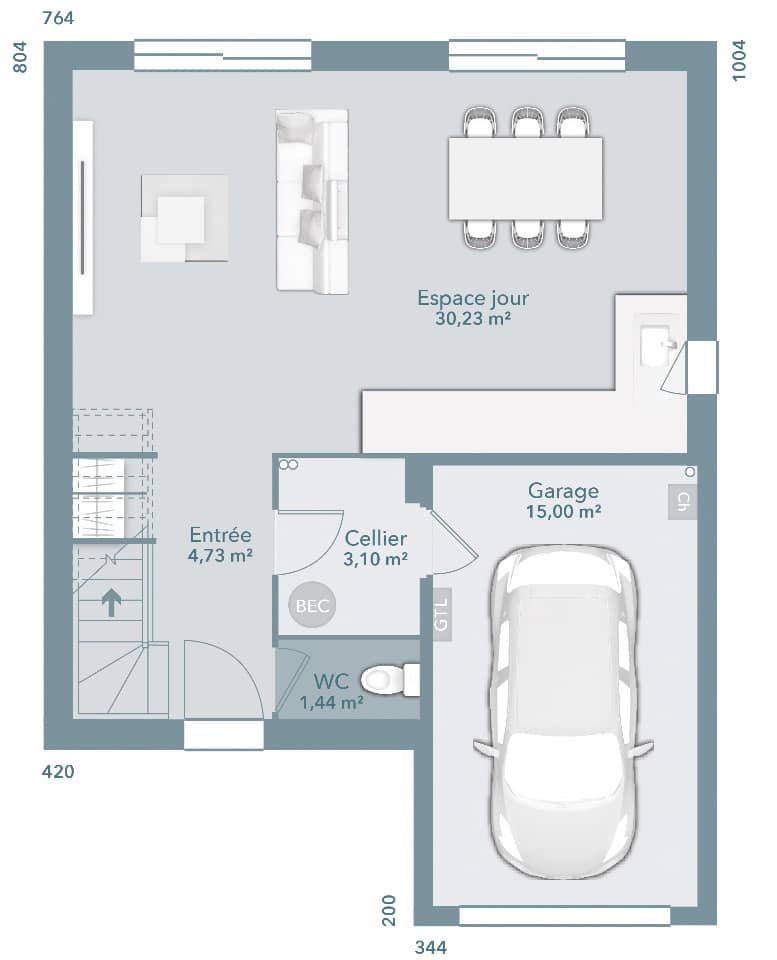
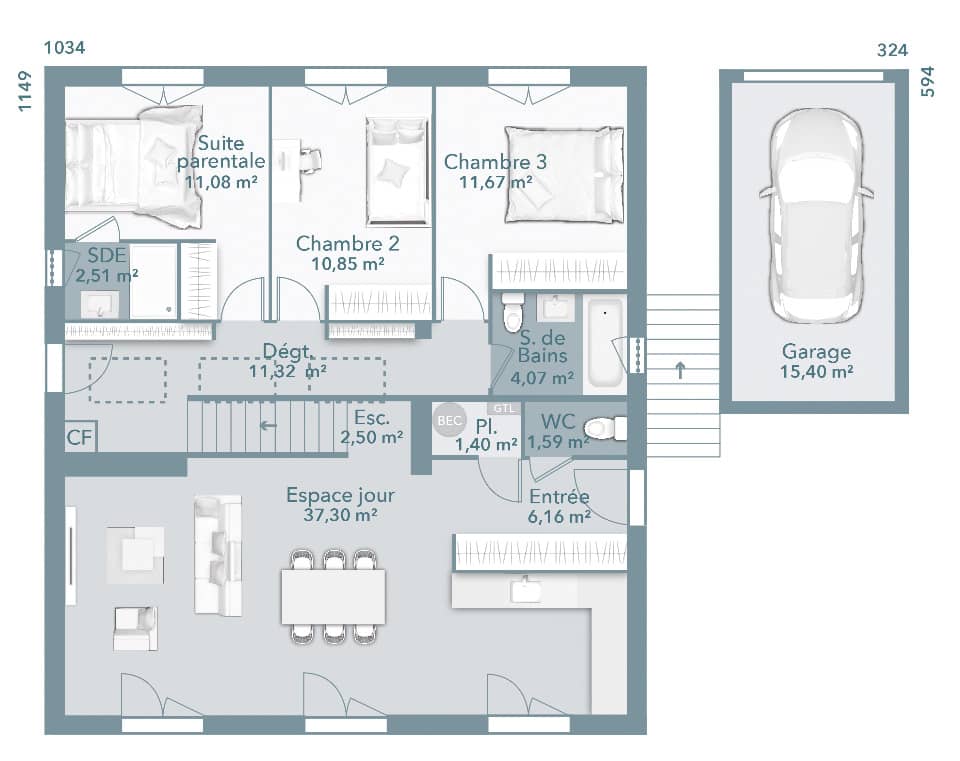
L'agence Maisons France Confort d'AUCAMVILLE vous présente ce projet de construction avec cette maison neuve RE 2020 à étage de 85m² sur la commune de MONTASTRUC . Sur un terrain constructible de 1500 m², le modèle proposé est OPTIMA 85 E. Conception traditionnelle sur mesure, entièrement personnalisable, composée au rez-de-chaussée, d'une entrée avec accès au cellier, d'une lumineuse pièce de vie avec séjour/cuisine de 30m², un WC. A l'étage vous trouverez 3 chambres et une salle de bains. Le garage de 15 m² est en option est accolé à la maison et accessible par le cellier. Environnement très agréable avec les commodités à proximité et MONTAUBAN accessible en 10 minutes. Contactez l'agence Maisons France Confort d'AUCAMVILLE au 05 34 43 84 38 Xavier FEUGUEUR. PRIX : 188 000 € HF





