

- Prix
- 279 000 €
Maison neuve • Toulouse
- Nom et prix
- Terrain à bâtir Toulouse (31200) • 279 000 €
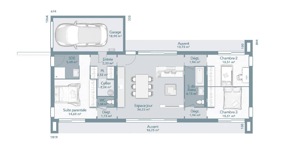
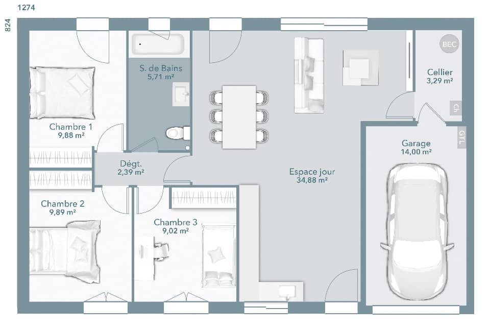
L'agence Maisons France Confort d'AUCAMVILLE - EXCLUSIVITE - Projet de construction RE 2020 avec cette maison de 95m² à 20 minutes de TOULOUSE . Idéale pour un premier investissement, cette maison neuve est entièrement personnalisable. Le modèle présenté est ACTUA 95, conception traditionnelle de plain-pied. Il comporte une entrée, un séjour/cuisine de 42m², un cellier, un WC et un espace nuit composé de 3 chambres et une salle de bains. Le garage de 16m² est accolé à la maison et en option. Au coeur de la campagne toulousaine, sur une parcelle constructible de 652 m², vous profiterez de toutes les commodités à seulement 5 minutes. Votre conseiller de l'agence Maisons France Confort d'AUCAMVILLE est à votre disposition au 05 34 43 84 38 - Xavier FEUGUEUR. PRIX : 279 000 € HF





