

- Prix
- 279 000 €
Maison neuve • Cépet
- Nom et prix
- Terrain à bâtir Cépet (31620) • 279 000 €
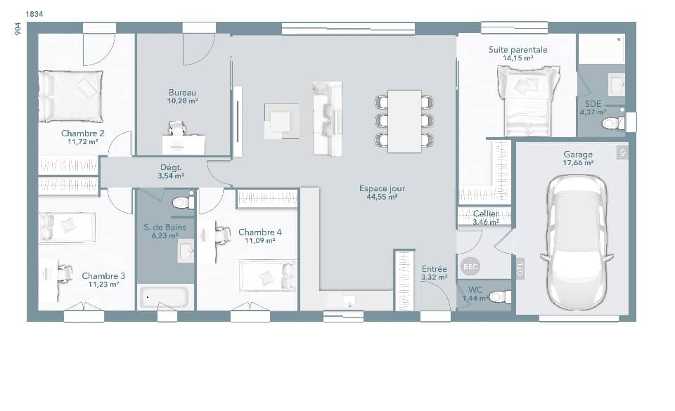
VENTE en EXCLUSIVITE d'une maison de 4 pièces (95 m²) à Cépet IDÉALEMENT SITUÉE - VUE DÉGAGÉE sur la vallée du GIROU En vente : à deux pas de Toulouse, Maisons France Confort Aucamville vous propose, idéalement située à 2 minutes de Cépet (31620), cette maison de 4 pièces de 95 m² avec vue dégagée. Cette maison est de plain-pied, elle dispose de trois chambres, d'une cuisine et d'une salle de bains. Cette maison est neuve. Le terrain de la propriété s'étend sur 652 m². Cette maison est située dans un quartier recherché. L'autoroute A62 est accessible à 5 km. Elle est à vendre pour la somme de 279 000 €. Contactez notre agence (FEUGUEUR Xavier : 05 34 43 84 38) pour toute question sur la maison ou sur les modalités de vente. Maisons France Confort Aucamville est là pour vous accompagner dans toutes vos démarches.





