

- Prix
- 274 911 €
Maison neuve • Verfeil
- Nom et prix
- Terrain à bâtir Verfeil (31590) • 274 911 €
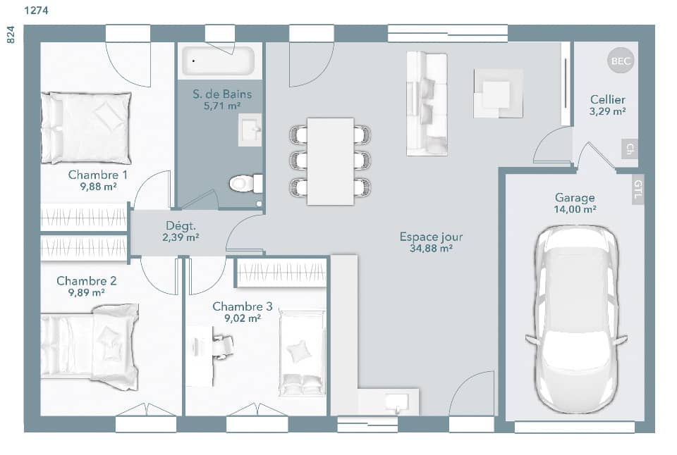
'Votre agence Maisons France Confort d'Aucamville vous propose ce beau projet maison + terrain à VERFEIL Une maison spécialement étudiée et optimisée pour réussir votre projet d'investissement en toute sérénité. Tout est imaginé pour le confort de ses occupants mais aussi pour la tranquillité de ses propriétaires. Ce modèle Optima de 85 m² est composé de 3 chambres dont une suite parentale avec salle d'eau privative en option, d'une salle de bains, d'une espace jour de 35 m², d'un grand cellier et d'un garage en option. 274.911.€hf Pour toutes informations, contactez l'agence MAISONS FRANCE CONFORT d'Aucamville au 05.34.43.84.38'





