

- Prix
- 180 000 €
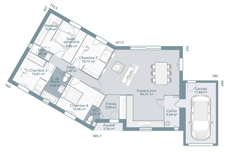
Maison neuve • Labastide-Saint-Pierre
- Nom et prix
- Terrain à bâtir Labastide-Saint-Pierre (82370) • 180 000 €
Votre agence Maisons France Confort d'AUCAMVILLE vous propose ce projet maison + terrain à LABASTIDE ST PIERRE. Cette maison sur plan à conception traditionnelle sera parfaitement fonctionnelle pour ses occupants. Le modèle est PPGA de 70m² avec un garage accolé en option. Ce modèle dispose d'une pièce de vie de 35m² comprenant le salon et la cuisine, deux chambres, une salle de bains et un cellier. Elle se trouve sur une parcelle de 640 m² à 5 minutes des commodités et à 30 minutes de Toulouse. Pour toutes informations, contactez l'agence MAISONS FRANCE CONFORT d'AUCAMVILLE au 05 34 43 84 38 Xavier FEUGUEUR. PRIX : 180 000 € HF





