

- Prix
- 272 000 €
Maison neuve • Buzet-sur-Tarn
- Nom et prix
- Terrain à bâtir Buzet-sur-Tarn (31660) • 272 000 €
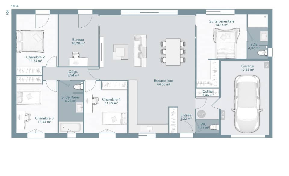
L'agence Maisons France Confort d'AUCAMVILLE a imaginé pour vous cette maison neuve RE 2020 de 125m² à 10 minutes de BUZET sur Tarn . Sur une parcelle (viabilisée) de 757 m², le modèle présenté est OPTIMA 125. Conception traditionnelle de plain-pied, entièrement personnalisable, composée d'une entrée, d'une pièce de vie avec séjour et cuisine de plus de 44m², d'un cellier, de 4 chambres dont une suite parentale en option (dressing + sde), d'une salle de bains et WC indépendant. Le garage de 17m² est intégré à la maison. Au calme, à seulement 5 minutes des commodités et Toulouse accessible en 30 minutes. Votre conseiller de l'agence Maisons France Confort d'AUCAMVILLE est à votre disposition au 05 34 43 84 38 Xavier FEUGUEUR. PRIX : 272 000 € HF





