

- Prix
- 273 895 €
Maison neuve • Ondes
- Nom et prix
- Terrain à bâtir Ondes (31330) • 273 895 €
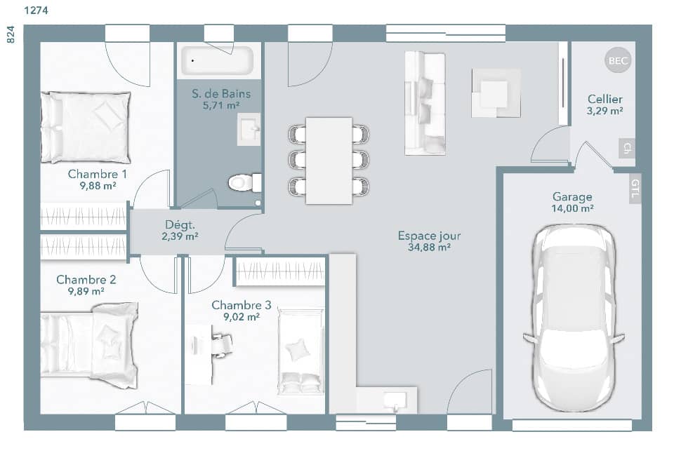
Terrain Viabilisé d'environ 550 m² + Maison Bastide 95+20 à Construire vers Ondes - Votre Projet sur mesure ! Sur un terrain plat , viabilisé et idéalement situé près d'Ondes, nous vous proposons de construire la maison Bastide 95 + 20. Ce modèle spacieux de 95 m² + 20 m² de garage, avec 4 chambres et un grand séjour, est parfait pour accueillir votre famille dans un cadre de vie confortable et moderne. Pourquoi choisir Maisons France Confort, groupe HEXAOM ? Terrain prêt à construire Maison adaptée à vos besoins : 95 m² + garage de 20 m² Accompagnement complet : financement, conception et construction Leader Hexaom : qualité, expertise et suivi personnalisé PRIX TERRAIN + MAISON: 273 895€ HF Ne perdez pas de temps, contactez-nous pour une étude gratuite et réalisez votre projet immobilier en toute tranquillité ! Agence MAISONS FRANCE CONFORT d'Aucamville au 05.34.43.84.38.





