

- Prix
- 324 000 €
Maison neuve • Garidech
- Nom et prix
- Terrain à bâtir Garidech (31380) • 324 000 €
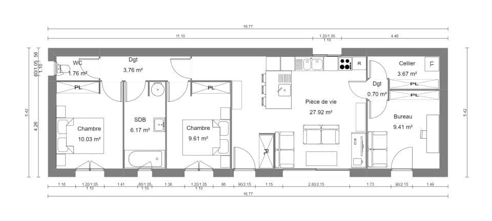
EXCLUSIVITE - L'agence Maisons France Confort d'AUCAMVILLE vous présente ce projet de construction personnalisé à ce terrain aux dernières normes (RE 2020) sur la commune de GARIDECH . Conception traditionnelle de plain-pied et entièrement personnalisable. Sur une parcelle de 1500 m², le modèle proposé est OPTIMA 75. Il se compose d'un espace séjour/cuisine de 35 m² donnant accès à un cellier, de 3 chambres, une salle de bains et un WC indépendant. Un garage de 14m² est intégré à la maison. La surface habitable est de 75 m². Dans un environnement calme et agréable à proximité des commodités. Toulouse vous sera accessible en 12 minutes. Contactez l'agence Maisons France Confort d'AUCAMVILLE au 05 34 43 84 38 Xavier FEUGUEUR. PRIX : 324 000 € HF





