

- Prix
- 275 200 €
Maison neuve • Verfeil
- Nom et prix
- Terrain à bâtir Verfeil (31590) • 275 200 €
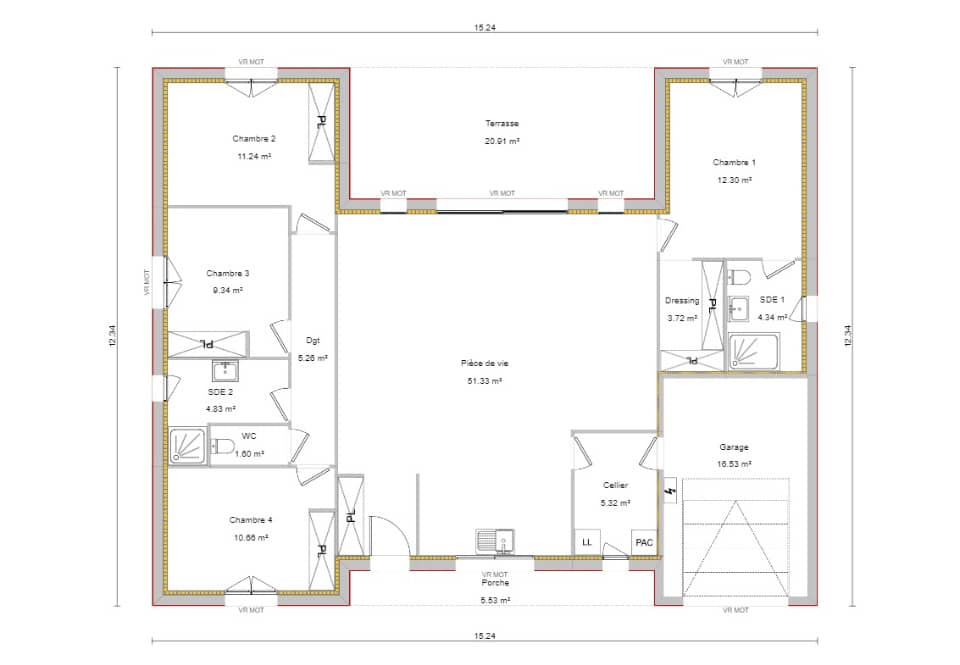
'Votre agence Maisons France Confort d'Aucamville vous propose ce beau projet maison + terrain à VERFEIL Venez découvrir ce plain-pied d'une architecture sobre et élégante, cette maison est conçue de manière ingénieuse, fonctionnelle et adaptable. Les volumes sont optimisés pour que chaque membre de la famille puisse avoir son propre cocon. Les plus de ce modèle Optima de 103 m² : Zones jour et nuit séparées. Suite parentale avec salle d'eau privative en option. Salle de bains en plus de la salle d'eau. WC séparés. Cellier prévu au niveau de l'arrière cuisine avec accès direct au garage. Nombreux espaces de rangements prévus. prix : 275.200 €hf Pour toutes informations, contactez l'agence MAISONS FRANCE CONFORT d'Aucamville au 05.34.43.84.38.'





