

- Prix
- 220 000 €
Maison neuve • Buzet-sur-Tarn
- Nom et prix
- Terrain à bâtir Buzet-sur-Tarn (31660) • 220 000 €
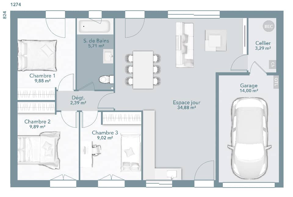
Votre agence Maisons France Confort d'AUCAMVILLE vous propose ce beau projet maison + terrain à 10 minutes de BUZET sur Tarn . PPGI 85 est un modèle de maison de plain-pied de 85m² à la ligne moderne et épurée en RE 2020. Celui-ci renferme de nombreux atouts : un garage intégré à la maison, 3 chambres, une salle de bains, une grande pièce de vie de 33m² et un cellier. Elle se trouve sur une parcelle de 757 m² à 10 minutes des commodités et à 30 minutes de Toulouse. Pour toutes informations, contactez l'agence MAISONS FRANCE CONFORT d'AUCAMVILLE au 05 34 43 84 38 Xavier FEUGUEUR. PRIX : 220 000 € HF





