

- Prix
- 230 405 €
Maison neuve • Saint-Porquier
- Nom et prix
- Terrain à bâtir Saint-Porquier (82700) • 230 405 €
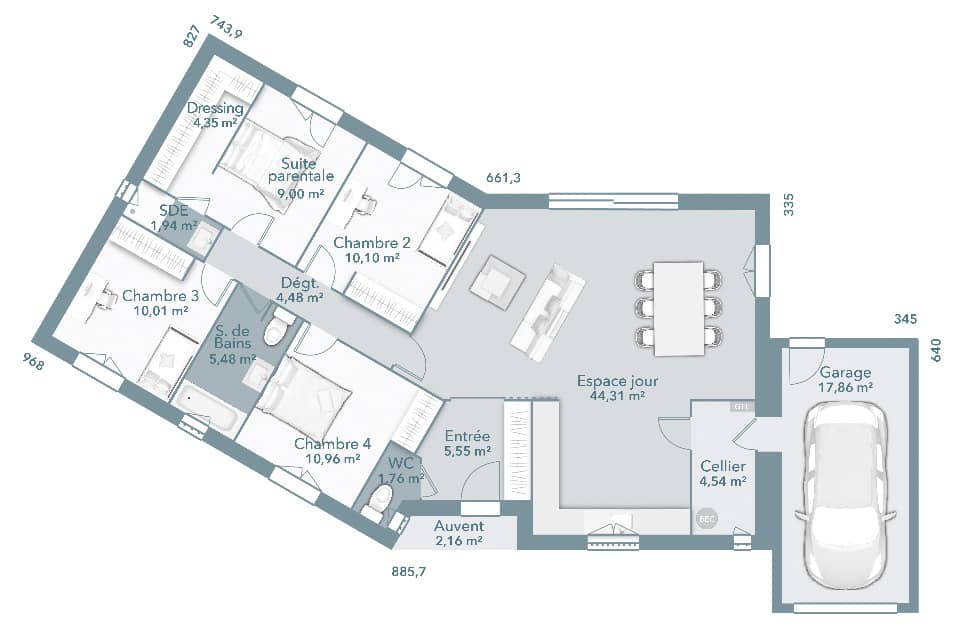
'Votre agence Maisons France Confort d'Aucamville vous propose ce beau projet maison + terrain à 12 minutes de la commune de St Porquier La ligne de maison Actua est conçue pour coller aux tendances actuelles ! Cette maison de plain-pied de 105 m² en RE2020 est faite astucieusement ! Jugez, vous-même : elle dispose d'une entrée avec son placard, d'une pièce de vie de plus de 40 m², d'un cellier et d'un garage en option. La pièce de vie comprend une jolie cuisine ouverte sur la salle à manger et le salon, un ensemble parfait pour apprécier l'espace et la lumière traversante. Pour la partie nuit, la composition de cette maison est aussi astucieuse : 3 chambres avec placards, une salle de bains mais aussi une suite parentale en option avec rangements et salle d'eau. Contactez-nous dès aujourd'hui ! Prix: 230.405..€HF Pour toutes informations, contactez l'agence MAISONS FRANCE CONFORT d'Aucamville au 05.34.43.84.38'





