

- Prix
- 292 000 €
Maison neuve • Trébons
- Nom et prix
- Terrain à bâtir () • 292 000 €
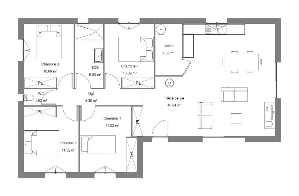
Maison T5 (123 m²) à vendre à Trébons IDÉALEMENT SITUÉE - MAISON 5 PIÈCES NEUVE En vente : idéalement située, découvrez cette maison de 5 pièces de 123 m² et de 1093m2 de terrain. Elle est proposée à l'achat pour 292000€. Découvrez le modèle ROQUELAURE personnalisable, adapté à vos goûts. Le modèle ROQUELAURE est optimisé pour obtenir le meilleur rapport qualité/prix tout en respectant la norme RE2020. Le prix indiqué est hors frais de raccordements, de branchements, d'adaptation au sol et de notaire sur le terrain. Ce prix est conseillé et soumis à variation en fonction des secteurs géographiques. Il n'inclut pas les options, ni les aménagements extérieurs et intérieurs (éléments de décoration, mobilier, cuisine équipée...). Garanties et assurances obligatoires incluses (voir détails en agence). Disponibilité et prix du terrain à vérifier avec notre partenaire foncier. Pour tout renseignement, contactez votre Conseiller Commerciale Laurent BAZIN 06.21.35.99.37 de chez Bruno PETIT à Juillan.





