

- Prix
- 399 000 €
Maison neuve • Monterblanc
- Nom et prix
- Terrain à bâtir () • 399 000 €
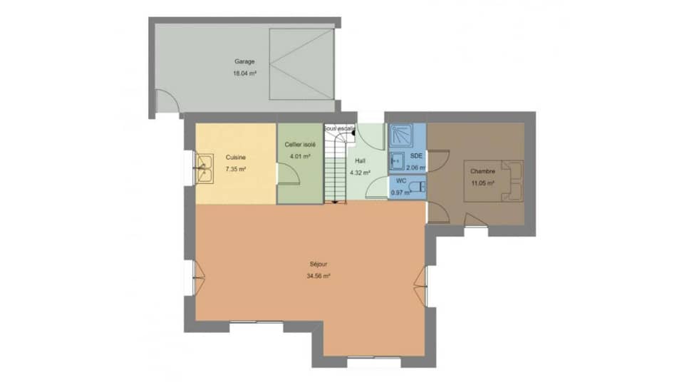
VENTE : maison F4 (139 m²) à Monterblanc EMPLACEMENT PRIVILÉGI- MAISON 4 PIÈCES NEUVE À vendre : située à 12 km de l'océan Atlantique et à 9 km de Vannes, bénéficiant d'un emplacement privilégié dans Monterblanc (56250), nous vous proposons cette maison de 4 pièces de 139 m². Il s'agit d'une maison de 2 niveaux. Elle est composée de trois chambres, d'une cuisine et de deux salles de bains. La maison est neuve. Le terrain du bien s'étend sur 298 m². Cette maison se situe dans un secteur convoité. Il y a l'École Primaire Privée Notre-Dame de la Croix et l'École Primaire Publique 1, 2, 3 Soleil à moins de 10 minutes à pied. Les nationales N166 et N165 sont accessibles à moins de 10 km. On trouve un tennis, une boulangerie et une épicerie à proximité de la maison. Elle est à vendre pour la somme de 399 000 €. N'hésitez pas à prendre contact avec notre agence (Anne-Sophie LAPART : 02-97-21-63-96) pour plus d'informations sur la maison ou sur les démarches à suivre. Maisons de l'Avenir Lorient vous accompagne à toutes les étapes de votre projet et dans tous vos projets immobiliers.





