

- Prix
- 267 600 €
Maison neuve • Merlevenez
- Nom et prix
- Terrain à bâtir Merlevenez (56700) • 267 600 €
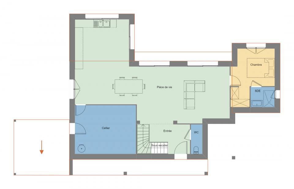
Vente d'une maison T4 (62 m²) à Merlevenez IDÉALEMENT SITUÉE - MAISON 4 PIÈCES NEUVE À vendre, cette maison de 4 pièces de 62 m², idéalement située à Merlevenez (56700), à quelques kilomètres de Lorient et à proximité du littoral atlantique. Sur un terrain de 503 m², cette maison neuve offre 2 niveaux, comprenant trois chambres, une cuisine et une salle de bains. Cette propriété se trouve dans un secteur recherché, avec de nombreux commerces, équipements et services à proximité. Le bien est facilement accessible grâce à sa proximité avec plusieurs gares et les nationales N165 et N24. Prix de vente : 267 600 € Pour plus d'informations ou pour organiser un rendez-vous, contactez Anne-Sophie LAPART au 02 97 21 63 96. Faites de votre projet immobilier une réalité avec Maisons de l'Avenir Lorient.





