

- Prix
- 410 000 €
Maison neuve • Guidel
- Nom et prix
- Terrain à bâtir Guidel (56520) • 410 000 €
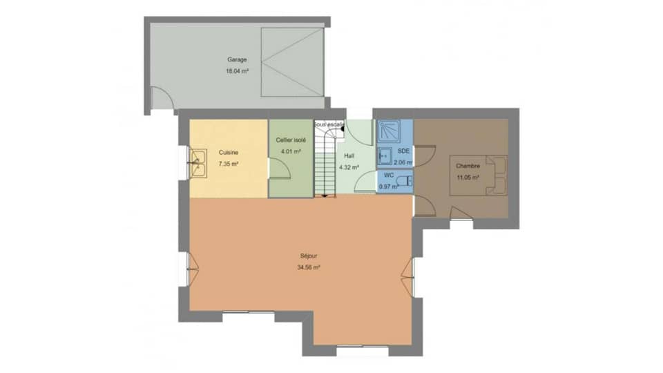
Maison de 5 pièces (95 m²) à vendre à Guidel EMPLACEMENT PRIVILÉGI- MAISON 5 PIÈCES NEUVE En vente : à 5 km de la côte atlantique et à deux pas de Lorient, bénéficiant d'un emplacement privilégié dans Guidel (56520), nous vous présentons cette maison de 5 pièces de 95 m² et de 350 m² de terrain. Son intérieur se divise en quatre chambres, une cuisine et deux salles de bains. C'est une maison de 2 niveaux. Elle est neuve. La maison se trouve dans un secteur attractif. Le Collège Privé Saint Jean Lasalle, l'École Primaire Privée Notre-Dame des Victoires et l'École Maternelle Publique Prat-Foën sont implantés à moins de 10 minutes à pied. Côté transports, on trouve les gares Gestel et Quimperlé à moins de 10 minutes en voiture. On trouve un accès à la nationale N165 à 3 km. Il y a un tennis, une bibliothèque, un bassin de natation, des commerces, des boulangeries, deux supermarchés, un bureau de poste et une boucherie-charcuterie dans les environs. Enfin, le marché Place Le Montagnière anime les environs tous les mercredis matin. Elle est à vendre pour la somme de 410 000 €. N'hésitez pas à prendre contact avec notre agence (Christophe COLLOCH : 02-97-21-63-96) pour tout renseignement sur la maison.





