

- Prix
- 223 900 €
Maison neuve • Languidic
- Nom et prix
- Terrain à bâtir Languidic (56440) • 223 900 €
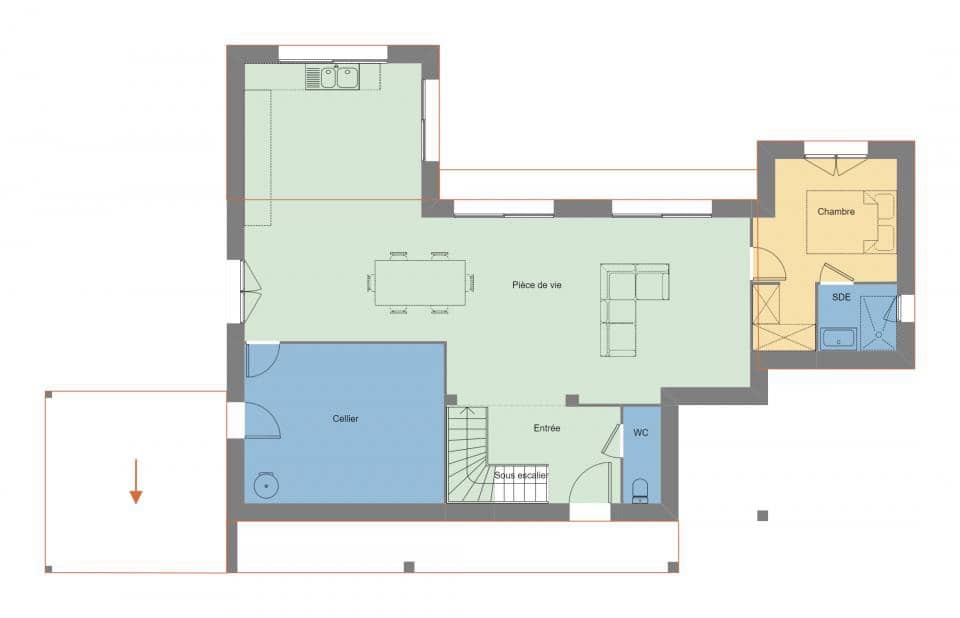
Maison T4 (75 m²) en vente à Languidic EMPLACEMENT PRIVILÉGI- MAISON 4 PIÈCES NEUVE À vendre : localisée à 25 km de la côte atlantique et à quelques kilomètres de Lorient, nous sommes ravis de vous proposer, bénéficiant d'un emplacement d'exception dans Languidic (56440), cette maison de 4 pièces de 75 m². Elle compte trois chambres, une cuisine et une salle de bains. Le terrain de cette maison est de 500 m². Cette maison possède 2 niveaux. Elle est neuve. La maison est située dans un secteur recherché. Plusieurs écoles (primaire et collège) se trouvent à moins de 10 minutes en voiture. Niveau transports en commun, il y a la gare Brandérion dans un rayon de 10 km. Les nationales N24 et N165 sont accessibles à moins de 10 km. On trouve des bibliothèques, des tennis, un bassin de natation, des boulangeries, des commerces, trois supermarchés, des boucheries-charcuteries et quatre poissonneries à proximité du logement. Le marché Place de l'église anime le quartier tous les samedis matin. Son prix de vente est de 223 900 €. Contactez notre agence (Christophe COLLOCH : 02-97-21-63-96) pour toute question sur la maison. Donnez vie à vos projets immobiliers avec Maisons de l'Avenir Lorient.





