

- Prix
- 252 200 €
Maison neuve • Malestroit
- Nom et prix
- Terrain à bâtir () • 252 200 €
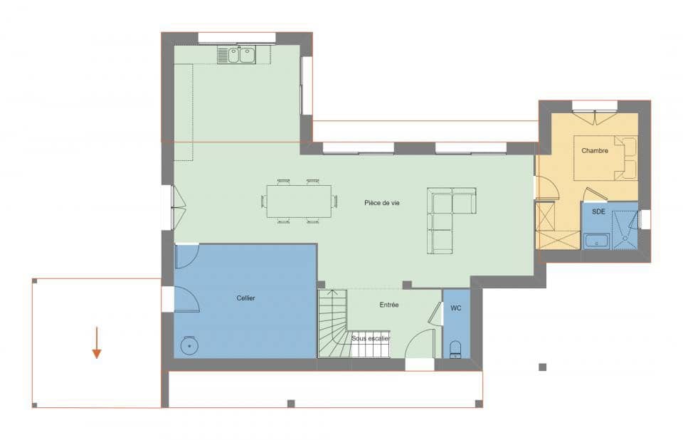
VENTE : maison T3 (86 m²) à Malestroit EMPLACEMENT PRIVILÉGI- MAISON 3 PIÈCES NEUVE À 33 km de l'océan Atlantique, Maisons de l'Avenir Lorient vous propose cette maison de 3 pièces de plain-pied de 86 m² et de 571 m² de terrain bénéficiant d'un emplacement d'exception dans Malestroit (56140). Conçue de plain-pied, elle inclut trois chambres, une cuisine et une salle de bains. La maison est neuve. Cette maison se trouve dans un quartier recherché. Il y a des écoles (de la maternelle au lycée) à moins de 10 minutes à pied, tout comme une structure d'accueil pour la petite enfance. On trouve un accès à la nationale N166 à 4 km. On trouve un port de plaisance, une bibliothèque, un tennis, des commerces, un supermarché, deux boulangeries, un bureau de poste et deux boucheries-charcuteries à quelques minutes de la maison. Ne manquez pas le marché Place Queinnec tous les jeudis matin. Son prix de vente est de 252 200 €. Prenez contact avec Kevin SIMON (02-97-21-63-96) pour toute question sur la maison, sur les modalités de vente ou sur les démarches à suivre. Maisons de l'Avenir Lorient est là pour vous accompagner dans tous vos projets immobiliers.





